Menu Sluiten

Omschrijving

FANTASTISCH WOONGENOT! ZOEK JE RUIMTE ÉN WIL JE WONEN IN JAREN '30 SFEREN? Welkom aan de Zwaluwstraat 5-B, in het gewilde, karakteristieke Oud-Charlois! Deze 3-laagse bovenwoning van totaal ca. 117 m² woonoppervlakte biedt maar liefst 5 kamers in een nette staat van onderhoud, plus 3 balkons van totaal ca. 15...

Lees verder

Kenmerken

  • Status Verkocht Onder Voorbehoud
  • Prijs € 335.000,- Kosten Koper
  • Woonoppervlakte 117m²
  • Objecttype Appartement
  • Bouwjaar 1938
meer kenmerken bekijken

In de omgeving

wijk statistieken

Burgerlijke staat (%)

  • Getrouwd
  • Ongehuwd
  • Gescheiden
  • Weduwe(naar)

Leeftijd in gemeente (%)

  • 0 - 15 jaar
  • 15 - 25 jaar
  • 25 - 45 jaar
  • 45 - 56 jaar
  • 65+ jaar

Gezin met kinderen

  • % met kinderen
  • % zonder kinderen
  • % eenpersoonshuishouden

Overdracht

  • Status Verkocht Onder Voorbehoud
  • Prijs € 335.000,- Kosten Koper
  • Aanvaarding In Overleg

Bouwvorm

  • Objecttype Appartement
  • Type appartement Bovenwoning
  • Bouwjaar 1938
  • Bouwvorm Bestaande Bouw
  • Locatie Aan Rustige Weg, In Woonwijk, Beschutte Ligging

Indeling

  • Woonoppervlakte 117m2
  • Capaciteit 391m3
  • Kamers 5
  • Slaapkamers 4
  • Woonverdiepingen

Energie

  • Energie-klasse D
  • Einddatum energie 2026-09-13
  • Isolatie Dubbel Glas
  • Warm water Cv Ketel
  • Verwarming Cv Ketel
  • Bouwjaar ketel 2012
  • Combiketel Ja
  • Brandstof Gas
  • Eigendom Eigendom

Buitenruimte

  • Tuin Geen Tuin

Parkeren

  • Garage Geen Garage
  • Parkeergelegenheid Betaald Parkeren, Parkeervergunningen

Dak

  • Type Zadeldak

Andere

  • Permanent verblijf Ja
  • Bijzonderheden Gestoffeerd
  • Onderhoud binnenshuis Goed
  • Onderhoud binnenshuis Goed
  • Huidig gebruik Woonruimte
  • Huidig doel Woonruimte

Kadastrale gegevens

  • Gemeente Charlois
  • Sectie H
  • Kavelnummer 2924
  • Index 2
  • Eigendomssituatie VOLLE_EIGENDOM

Omschrijving

FANTASTISCH WOONGENOT! ZOEK JE RUIMTE ÉN WIL JE WONEN IN JAREN '30 SFEREN? Welkom aan de Zwaluwstraat 5-B, in het gewilde, karakteristieke Oud-Charlois! Deze 3-laagse bovenwoning van totaal ca. 117 m² woonoppervlakte biedt maar liefst 5 kamers in een nette staat van onderhoud, plus 3 balkons van totaal ca. 15 m² is een aantrekkelijke optie voor veel woningzoekers!

Wanneer je de woning binnenstapt valt de royale woonkamer met inbouwkeuken meteen op. De trapopgang leidt je naar de tweede verdieping waar drie slaapkamers en een eigentijdse badkamer zijn. Op zolder is de vierde riante slaapkamer van de woning te vinden met een dakkapel, wasruimte en veel bergruimte. De gehele woning is voorzien van kunststof raamkozijnen en dubbele beglazing en in 2025 heeft er via de VvE groot onderhoud aan de buitenzijde plaats gevonden. Kortom: een prachtig geheel!

De wijk Oud-Charlois is een populaire wijk in een mooi stukje Rotterdam met nog veel karakteristieke panden. Binnen 5 minuten afstand zijn de meeste voorzieningen aan te lopen. Denk hierbij dan aan: winkels, restaurants, openbaar vervoer (tram, bus, pondje naar Katendrecht), autogarage en voetgang- en fietstunnel onder de Nieuwe Maas. Daarnaast herbergt het hart van Zuid vele voorzieningen, zoals het grote overdekte winkelcentrum Zuidplein, Ahoy en een groot bus- en metrostation wat op dit moment een metamorfose ondergaat. In het grote stadspark, het Zuiderpark is gestart met de bouw van een hotel. Kortom: het bruisende Rotterdam Zuid is binnen handbereik!

Persoonlijke noot van de verkoper: "Wij hebben met veel plezier gewoond in Oud-Charlois. Midden in de stad maar toch omringt door veel groen, we hebben genoten van wandelen langs de Boergoensevliet, de dijk en door het Zuiderpark. In de lente en zomer maken wij dagelijks gebruik van de zonnige balkons waar we na een dag werken kunnen genieten en uitrusten in de zon. Mocht je de drukte van de stad willen opzoeken, dan sta je door een goede busverbinding met een kwartier op Rotterdam Centraal. We hopen dat jullie net zo zullen genieten van het huis als wij dat gedaan hebben!"

Benieuwd naar hoe alle vertrekken eruit zien? De foto's spreken tot de verbeelding! Maar; alleen een bezichtiging geeft de juiste indruk! Bel snel voor een afspraak!

Indeling: 

Begane grond:
Eigen woningentree op de begane grond met trapopgang naar woonverdieping. 

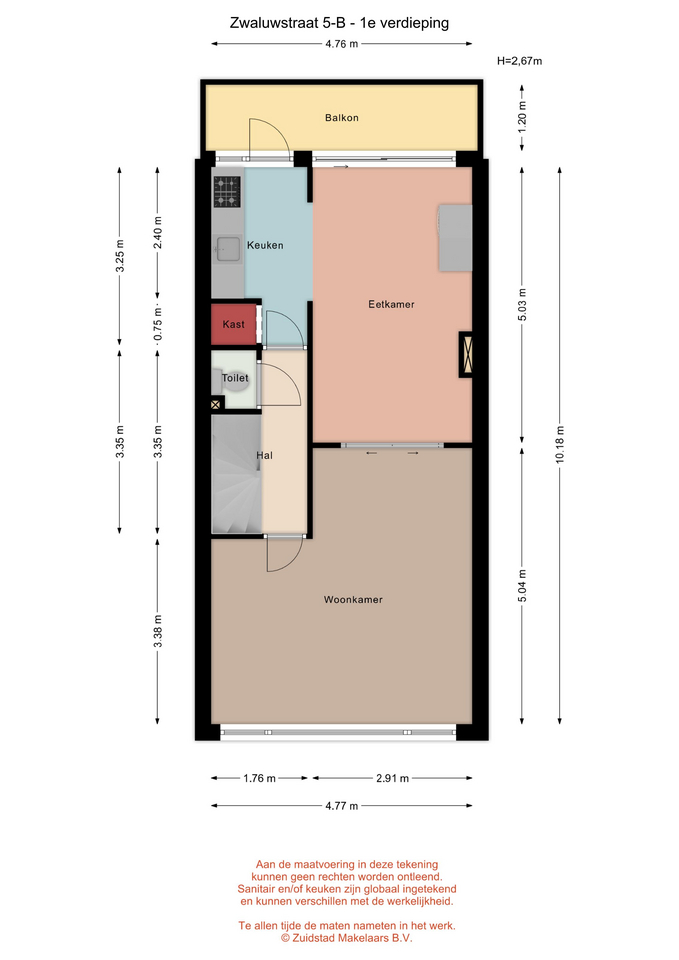
Eerste verdieping:
* Gang voorzien van laminaatvloer en de trapopgang naar de tweede verdieping. 
* Toiletruimte voorzien van duoblok-toiletopstelling en moderne betegeling. 
* Sfeervolle woonkamer aan de voorzijde voorzien van een laminaatvloer, nette wand- en plafondafwerking en schuifdeuren naar de keukenruimte. 
* Woonkeuken aan de achterzijde voorzien van laminaatvloer, nette wand- en plafondafwerking, schouw, vaste kast met de meterkast, schuifpui en een deur naar het achtergelegen balkon en inbouwkeuken met diverse apparatuur: gaskookplaat (5-pits), schouwafzuigkap, oven en magnetron.
* Balkon over de gehele breedte van de woning, gelegen op het westen.

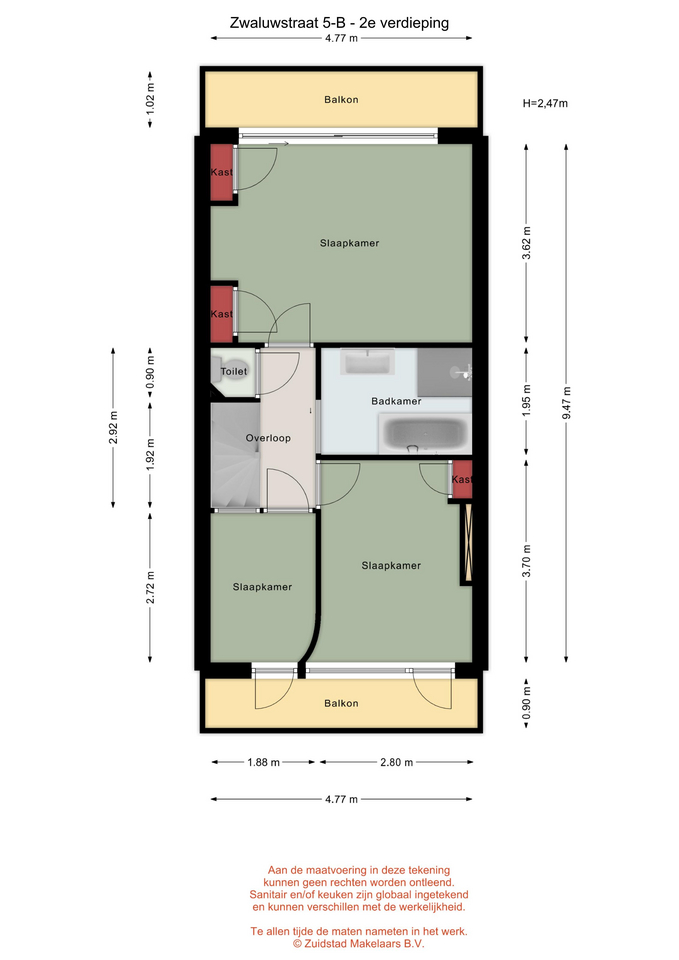
Tweede verdieping:
* Overloop voorzien van laminaatvloer, trapopgang naar de zolderverdieping en toegang tot de verschillende vertrekken. 
* Toiletruimte voorzien van duoblok-toiletopstelling en moderne betegeling. 
* Grote slaapkamer I aan de achterzijde met twee vaste kasten en een schuifpui naar het balkon.
* Balkon over de gehele breedte van de woning, gelegen op het westen.
* Royale badkamer voorzien van wastafelmeubel, ligbad, douche met regendouche, plafond met inbouwspots en moderne betegeling.
* Slaapkamer II aan de voorzijde voorzien van laminaatvloer, een vaste kast en een deur naar het balkon. 
* Slaapkamer III aan de voorzijde voorzien van laminaatvloer en eveneens een deur naar het balkon. 
* Balkon over de gehele breedte van de woning, gelegen op het oosten.

Zolderverdieping:
* Royale overloop voorzien van laminaatvloer, wasmachine- en drogeraansluiting, kastruimte met de opstelling van de C.V.-combiketel, dakraam en toegang tot slaapkamer IV. 
* Royale zolderkamer met dakkapel en voorzien van laminaatvloer, wastafel en veel kastruimte. 

Algemeen:

* Eigen grond.
* Energielabel D, geldig tot 13 september 2026. 
* De wijk Oud-Charlois valt onder de opkoopbescherming. Dit houdt in dat een belegger de woning niet kan kopen voor de verhuur, al gelden er uitzonderingen zoals de verhuur aan een kind. Kijk voor meer informatie op de website van de gemeente Rotterdam.
* De woning is geheel voorzien van kunststof raamkozijnen met dubbele beglazing.
* Centrale verwarming en warmwatervoorziening middels combiketel (Remeha, 2012).
* Voor een indicatie van de maatvoering verwijzen wij naar de plattegrond.
* Gezien het bouwjaar van de woning wordt er in de koopovereenkomst een ouderdomsclausule opgenomen.

Gebruiksoppervlakten en inhoud: 

* Wonen ca. 117 m²
* Gebouwgebonden buitenruimte ca. 15 m²
* Inhoud ca. 391 m³
 
Bijdrage V.v.E.                  : € 45,- per maand
Bouwjaar woning              : 1938
Oplevering                       : In onderling overleg, kan snel

Wijk statistieken

Burgerlijke staat (%)

  • Getrouwd
  • Ongehuwd
  • Gescheiden
  • Weduwe(naar)

Leeftijd in gemeente (%)

  • 0 - 15 jaar
  • 15 - 25 jaar
  • 25 - 45 jaar
  • 45 - 56 jaar
  • 65+ jaar

Gezinnen met kinderen

  • % met kinderen
  • % zonder kinderen
  • % éénpersoonshuishouden

Gezinssamenstelling Oud Charlois

  • Getrouwd
  • Ongehuwd
  • Gescheiden
  • Weduwe(naar)

Leeftijd in wijk

  • 0 - 15 jaar
  • 15 - 25 jaar
  • 25 - 45 jaar
  • 45 - 56 jaar
  • 65+ jaar

Documenten

Selecteer de documenten om ze te downloaden

terug naar overzicht
Chat openen
1
Hallo,
Kunnen wij jou ergens mee helpen?