Menu Sluiten
3082 JN ROTTERDAM

Verboomstraat 28B

Omschrijving

COMFORTABEL EN RUIM WONEN IN HET POPULAIRE OUD-CHARLOIS! Een fijne woning op een geliefde locatie! De Verboomstraat 28-B is een 6-kamer(!) 2-laagse bovenwoning met een woonoppervlakte van ca. 85 m² en twee balkons aan de achterzijde, gelegen op het oosten. Een woning die zich leent voor diverse woonwensen. De woning...

Lees verder

Kenmerken

  • Status Verkocht Onder Voorbehoud
  • Prijs € 290.000,- Kosten Koper
  • Woonoppervlakte 85m²
  • Objecttype Appartement
  • Bouwjaar 1934
meer kenmerken bekijken

Kaart

In de omgeving

wijk statistieken

Burgerlijke staat (%)

  • Getrouwd
  • Ongehuwd
  • Gescheiden
  • Weduwe(naar)

Leeftijd in gemeente (%)

  • 0 - 15 jaar
  • 15 - 25 jaar
  • 25 - 45 jaar
  • 45 - 56 jaar
  • 65+ jaar

Gezin met kinderen

  • % met kinderen
  • % zonder kinderen
  • % eenpersoonshuishouden

Overdracht

  • Status Verkocht Onder Voorbehoud
  • Prijs € 290.000,- Kosten Koper
  • Aanvaarding In Overleg

Bouwvorm

  • Objecttype Appartement
  • Type appartement Bovenwoning
  • Bouwjaar 1934
  • Bouwvorm Bestaande Bouw
  • Locatie Aan Rustige Weg, In Woonwijk, Beschutte Ligging

Indeling

  • Woonoppervlakte 85m2
  • Capaciteit 282m3
  • Kamers 6
  • Slaapkamers 5
  • Woonverdiepingen

Energie

  • Energie-klasse C
  • Einddatum energie 2030-04-07
  • Isolatie Dubbel Glas, Hr Glas
  • Warm water Cv Ketel
  • Verwarming Cv Ketel
  • Bouwjaar ketel 2019
  • Combiketel Ja
  • Brandstof Gas
  • Eigendom Eigendom

Buitenruimte

  • Tuin Geen Tuin

Parkeren

  • Garage Geen Garage
  • Parkeergelegenheid Betaald Parkeren, Parkeervergunningen

Dak

  • Type Zadeldak

Andere

  • Permanent verblijf Ja
  • Bijzonderheden Gestoffeerd
  • Onderhoud binnenshuis Goed
  • Onderhoud binnenshuis Goed
  • Huidig gebruik Woonruimte
  • Huidig doel Woonruimte

Kadastrale gegevens

  • Gemeente Charlois
  • Sectie B
  • Kavelnummer 7498
  • Index 2
  • Eigendomssituatie VOLLE_EIGENDOM

Omschrijving

COMFORTABEL EN RUIM WONEN IN HET POPULAIRE OUD-CHARLOIS! Een fijne woning op een geliefde locatie! De Verboomstraat 28-B is een 6-kamer(!) 2-laagse bovenwoning met een woonoppervlakte van ca. 85 m² en twee balkons aan de achterzijde, gelegen op het oosten. Een woning die zich leent voor diverse woonwensen.

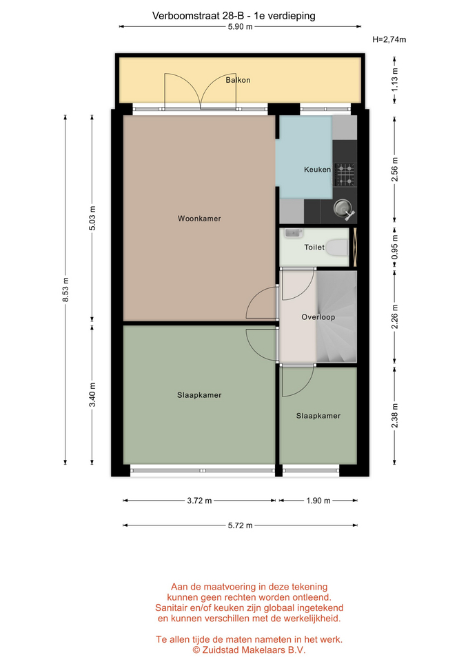
De woning heeft een eigen entree op de begane grond met trapopgang naar de woonverdiepingen. Op de eerste verdieping bevindt zich de woonkamer, gesitueerd aan de achterzijde en in open verbinding met de keuken. De keuken is uitgevoerd in lichte kleurstelling en voorzien van diverse inbouwapparatuur. Via openslaande deuren is er toegang tot het balkon. Daarnaast bevinden zich op deze verdieping een verzorgde toiletruimte en twee slaapkamers aan de voorzijde. De tweede verdieping biedt ruimte aan drie slaapkamers. De slaapkamer aan de voorzijde beschikt over een dakkapel. Aan de achterzijde bevinden zich twee slaapkamers met openslaande deur(en) naar het tweede balkon. Tevens is op deze verdieping een nette badkamer aanwezig, uitgerust met een inloopdouche en wastafelmeubel. Verder is de woning voorzien van kunststof kozijnen met dubbele beglazing en wordt verwarmd middels een C.V.-combiketel uit 2019.

De karakteristieke wijk Charlois is in trek door de centrale ligging! In de straat zijn bushaltes en een paar straten verderop aan de Boergoensevliet is een tramhalte. Ook zijn buurtwinkels met het Karel de Stouteplein in de buurt. De wijk heeft veel historische bebouwing en ligt vlakbij het stadscentrum. Aan de rand van de wijk is een opstappunt voor de watertaxi. Verder grenst Oud-Charlois aan het grootse ‘Zuiderpark’ en de Nieuwe Maas, met aan de andere kant het stadscentrum.

Kortom: genoeg redenen voor een vrijblijvende bezichtiging van deze woning. Van harte welkom!

Indeling:

Begane grond:
* Woningentree met de trapopgang naar de woonverdieping.

Eerste verdieping:
* Overloop voorzien van laminaatvloer, trapopgang naar de tweede verdieping en toegang tot de verschillende vertrekken.
* Toiletruimte voorzien van wandtoilet, fonteintje, mechanische ventilatie, betegeling en verlaagd plafond met inbouwspots.
* Woonkamer aan de achterzijde voorzien van laminaatvloer, gestuukte wanden en plafond, open verbinding met de keukenruimte en openslaande deuren naar het balkon. 
* Balkon aan de achterzijde, gelegen op het oosten, voorzien van terrastegels.
* Open keukenruimte voorzien van lichte inbouwkeuken met inbouwapparatuur; gaskookplaat, oven, magnetron, afzuigkap, vaatwasmachine en koelkast, vrieskast. Verder is er een kast met de opstelling van de C.V.-combiketel.
* Slaapkamer I aan de voorzijde voorzien van laminaatvloer en gestuukte wanden en plafond.
* Kleine slaapkamer II aan de voorzijde voorzien van laminaatvloer en gestuukte wanden en plafond.

Tweede verdieping:
* Overloop voorzien van laminaatvloer en toegang tot de verschillende vertrekken.
* Slaapkamer III aan de voorzijde voorzien van laminaatvloer, gestuukte wanden en plafond en dakkapel.
* Fraaie badkamer met een inloopdouche, wastafelmeubel, designradiator en nette betegeling.
* Slaapkamer IV aan de achterzijde voorzien van laminaatvloer, gestuukte wanden en plafond en openslaande deuren naar het balkon.
* Slaapkamer V aan de achterzijde voorzien van laminaatvloer, gestuukte wanden en plafond en een deur naar het balkon.
* Balkon aan de achterzijde, gelegen op het oosten, voorzien van houten vlonderdelen.

Algemeen:
 
* Eigen grond.
* Energielabel C, geldig tot en met 7 april 2030.
* De wijk Oud-Charlois valt onder de opkoopbescherming. Dit houdt in dat een belegger de woning niet kan kopen voor de verhuur, al gelden er uitzonderingen zoals de verhuur aan een kind. Kijk voor meer informatie op de website van de gemeente Rotterdam.
* De woning is geheel voorzien van kunststof raamkozijnen met dubbele beglazing (op de eerste verdieping aan de achterzijde HR++).
* Centrale verwarming en warmwatervoorziening middels combiketel (Intergas, 2019).
* De VvE bestaat uit Verboomstraat 28 A en 28 B (op dit moment beiden van dezelfde eigenaar). De VvE gaat daarom pas van start/wordt opgericht zodra de woning Verboomstraat 28 A op naam staat van een nieuwe eigenaar.
* Aan de foto-presentatie zijn een aantal artist impressions toegevoegd. Deze foto's geven een weergave van hoe het object er na een verbouwing uit kan komen te zien.
* De notariële eigendomsoverdracht van dit appartement dient plaats te vinden bij de daartoe aangewezen projectnotaris: NL Notariaat te Etten-Leur.
* Aangezien het een verkoop uit de huur betreft worden er extra artikelen aan de koopovereenkomst toegevoegd. Een concept koopovereenkomst is bij ons op te vragen en wordt na aanvraag van een bezichtiging ook inzichtelijk gemaakt in Move.nl.
* Voor een indicatie van de maatvoering verwijzen wij naar de plattegrond.
* Gezien het bouwjaar van de woning wordt er in de koopovereenkomst een ouderdomsclausule opgenomen en een artikel dat verband houdt met het feit dat de woning een voormalige huurwoning betreft.
 
Gebruiksoppervlakten en inhoud:
* Wonen ca. 85 m²
* Gebouwgebonden buitenruimte ca. 15 m²
* Inhoud ca. 282 m³
 
Bijdrage VvE               : € 213,35 per maand (betalingen gaan van start zodra de woning verkocht is)
Bouwjaar woning         : 1934
Oplevering                 : 10 weken na ondertekening van de koopovereenkomst

Wijk statistieken

Burgerlijke staat (%)

  • Getrouwd
  • Ongehuwd
  • Gescheiden
  • Weduwe(naar)

Leeftijd in gemeente (%)

  • 0 - 15 jaar
  • 15 - 25 jaar
  • 25 - 45 jaar
  • 45 - 56 jaar
  • 65+ jaar

Gezinnen met kinderen

  • % met kinderen
  • % zonder kinderen
  • % éénpersoonshuishouden

Gezinssamenstelling Oud Charlois

  • Getrouwd
  • Ongehuwd
  • Gescheiden
  • Weduwe(naar)

Leeftijd in wijk

  • 0 - 15 jaar
  • 15 - 25 jaar
  • 25 - 45 jaar
  • 45 - 56 jaar
  • 65+ jaar

Documenten

Selecteer de documenten om ze te downloaden

terug naar overzicht
Chat openen
1
Hallo,
Kunnen wij jou ergens mee helpen?