Menu Sluiten
3082 JN ROTTERDAM

Verboomstraat 28A

Omschrijving

VANWEGE DE VELE INTERESSE IN DEZE WONING IS HET NIET LANGER MOGELIJK OM EEN BEZICHTIGINGSAFSPRAAK IN TE PLANNEN. ROYAAL WONEN MET EEN GEWELDIGE ACHTERTUIN IN DE GEWILDE WIJK OUD-CHARLOIS! Je hebt nu de mogelijkheid! De Verboomstraat 28-A is een 5-kamer(!) dubbele benedenwoning van maar liefst ca. 104 m² woonoppervlakte. Een...

Lees verder

Kenmerken

  • Status Verkocht Onder Voorbehoud
  • Prijs € 300.000,- Kosten Koper
  • Woonoppervlakte 104m²
  • Objecttype Appartement
  • Bouwjaar 1934
meer kenmerken bekijken

Kaart

In de omgeving

wijk statistieken

Burgerlijke staat (%)

  • Getrouwd
  • Ongehuwd
  • Gescheiden
  • Weduwe(naar)

Leeftijd in gemeente (%)

  • 0 - 15 jaar
  • 15 - 25 jaar
  • 25 - 45 jaar
  • 45 - 56 jaar
  • 65+ jaar

Gezin met kinderen

  • % met kinderen
  • % zonder kinderen
  • % eenpersoonshuishouden

Overdracht

  • Status Verkocht Onder Voorbehoud
  • Prijs € 300.000,- Kosten Koper
  • Aanvaarding In Overleg

Bouwvorm

  • Objecttype Appartement
  • Type appartement Benedenwoning
  • Bouwjaar 1934
  • Bouwvorm Bestaande Bouw
  • Locatie Aan Rustige Weg, In Woonwijk, Beschutte Ligging

Indeling

  • Woonoppervlakte 104m2
  • Capaciteit 336m3
  • Kamers 5
  • Slaapkamers 4
  • Woonverdiepingen

Energie

  • Energie-klasse C
  • Einddatum energie 2030-04-07
  • Isolatie Dubbel Glas, Hr Glas
  • Warm water Cv Ketel
  • Verwarming Cv Ketel
  • Bouwjaar ketel 2019
  • Combiketel Ja
  • Brandstof Gas
  • Eigendom Eigendom

Buitenruimte

  • Tuin Achtertuin

Parkeren

  • Garage Geen Garage
  • Parkeergelegenheid Betaald Parkeren, Parkeervergunningen

Dak

  • Type Zadeldak

Andere

  • Permanent verblijf Ja
  • Bijzonderheden Gestoffeerd
  • Onderhoud binnenshuis Goed
  • Onderhoud binnenshuis Goed
  • Huidig gebruik Woonruimte
  • Huidig doel Woonruimte

Kadastrale gegevens

  • Gemeente Charlois
  • Sectie B
  • Kavelnummer 7498
  • Index 1
  • Eigendomssituatie VOLLE_EIGENDOM

Omschrijving

VANWEGE DE VELE INTERESSE IN DEZE WONING IS HET NIET LANGER MOGELIJK OM EEN BEZICHTIGINGSAFSPRAAK IN TE PLANNEN.

ROYAAL WONEN MET EEN GEWELDIGE ACHTERTUIN IN DE GEWILDE WIJK OUD-CHARLOIS! Je hebt nu de mogelijkheid! De Verboomstraat 28-A is een 5-kamer(!) dubbele benedenwoning van maar liefst ca. 104 m² woonoppervlakte. Een ideale optie voor wie dan ook!

De woning op de begane grond heeft een ruim souterrain in de onderbouw en een heerlijke tuin aan de achterzijde, gelegen op het oosten. Op de begane grond is er een tuingerichte woonkamer met een open keukenruimte voorzien van een moderne inbouwkeuken. Op de begane grond is verder een slaapkamer aan de voorzijde, een nette toiletruimte en aan de achterzijde een balkon met toegang tot de tuin. In het souterrain zijn nog eens een 3-tal slaapkamers, de royale en een separate wasruimte. De woning wordt verwarmd met een eigen combiketel en is geheel voorzien van kunststof raamkozijnen met dubbele beglazing. Wat wil je nog meer?

De karakteristieke wijk Charlois is in trek door de centrale ligging! In de straat zijn bushaltes en een paar straten verderop aan de Boergoensevliet is een tramhalte. Ook zijn buurtwinkels met het Karel de Stouteplein in de buurt. De wijk heeft veel historische bebouwing en ligt vlakbij het stadscentrum. Aan de rand van de wijk is een opstappunt voor de watertaxi. Verder grenst Oud-Charlois aan het grootse ‘Zuiderpark’ en de Nieuwe Maas, met aan de andere kant het stadscentrum.

Kortom: genoeg redenen voor een vrijblijvende bezichtiging van deze woning. Van harte welkom!

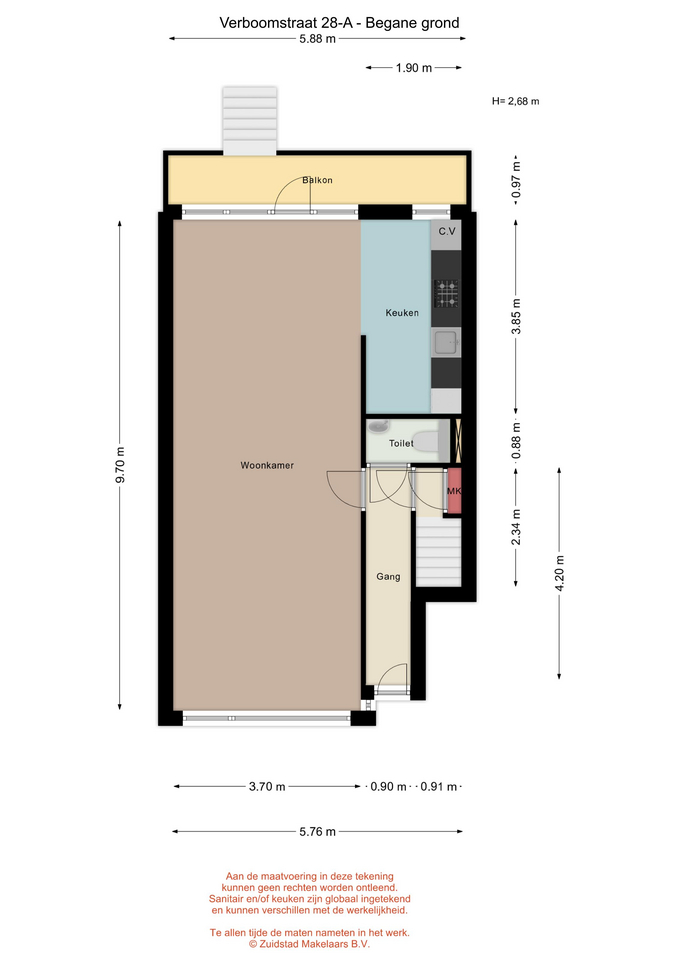
Indeling:

Begane grond:
* Woningentree met de gang voorzien van laminaatvloer, meterkast en de trap naar het souterrain.
* Slaapkamer I aan de voorzijde voorzien van laminaatvloer en gestuukte wanden en plafond.
* Toiletruimte voorzien van wandtoilet, fonteintje, mechanische ventilatie, betegeling en verlaagd plafond met inbouwspots.
* Woonkamer aan de achterzijde voorzien van laminaatvloer, gestuukte wanden en plafond, open verbinding met de keukenruimte en openslaande deuren naar het balkon. 
* Open keukenruimte voorzien van lichte inbouwkeuken met inbouwapparatuur; gaskookplaat, oven, magnetron, afzuigkap, vaatwasmachine en koelkast met vriesvak. Verder is er een kast met de opstelling van de C.V.-combiketel.

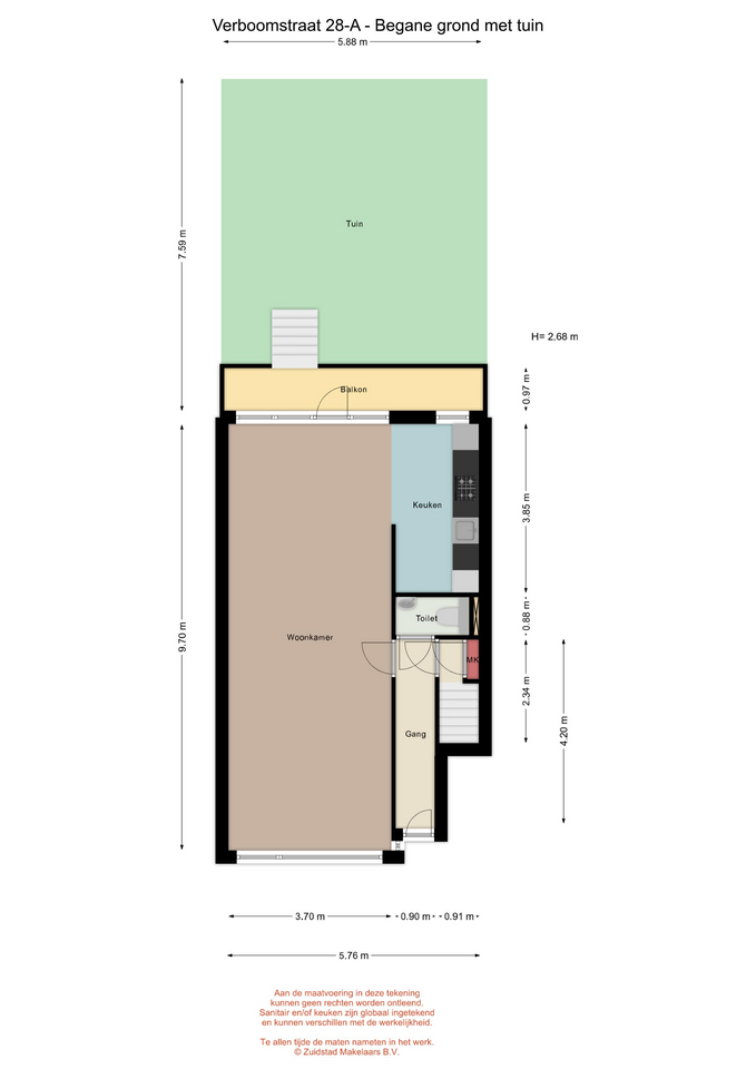
Achtertuin:
* Balkon is gelegen op het oosten met plaats voor een terrasje. Middels trap toegang tot de tuin.
* Achtertuin voorzien van bestrating en een mogelijkheid voor een achterom.

Souterrain/Onderhuis:
* Overloop voorzien van laminaatvloer en toegang tot de verschillende vertrekken.
* Wasruimte met de aansluiting voor de wasmachine en bergruimte. 
* Slaapkamer II aan de voorzijde voorzien van laminaatvloer en gestuukte wanden en plafond.
* Fraaie badkamer met een inloopdouche, wastafelmeubel, designradiator, mechanische ventilatie en nette betegeling.
* Slaapkamer III aan de achterzijde voorzien van laminaatvloer en gestuukte wanden en plafond.
* Slaapkamer IV aan de achterzijde voorzien van laminaatvloer, gestuukte wanden en plafond en een deur naar de achtertuin.

Algemeen:
 
* Eigen grond.
* Energielabel C, geldig tot en met 7 april 2030.
* De wijk Oud-Charlois valt onder de opkoopbescherming. Dit houdt in dat een belegger de woning niet kan kopen voor de verhuur, al gelden er uitzonderingen zoals de verhuur aan een kind. Kijk voor meer informatie op de website van de gemeente Rotterdam.
* De woning is geheel voorzien van kunststof raamkozijnen met dubbele (aan de achterzijde HR++) beglazing.
* Centrale verwarming en warmwatervoorziening middels combiketel (Intergas, 2019).
* De VvE bestaat uit Verboomstraat 28 A en 28 B (op dit moment beiden van dezelfde eigenaar). De VvE gaat daarom pas van start/wordt opgericht zodra de woning Verboomstraat 28 A op naam staat van een nieuwe eigenaar.
* Aan de foto-presentatie zijn een aantal artist impressions toegevoegd. Deze foto's geven een weergave van hoe het object er na een verbouwing uit kan komen te zien.
* De notariële eigendomsoverdracht van dit appartement dient plaats te vinden bij de daartoe aangewezen projectnotaris: NL Notariaat te Etten-Leur.
* Aangezien het een verkoop uit de huur betreft worden er extra artikelen aan de koopovereenkomst toegevoegd. Een concept koopovereenkomst is bij ons op te vragen en wordt na aanvraag van een bezichtiging ook inzichtelijk gemaakt in Move.nl.
* Voor een indicatie van de maatvoering verwijzen wij naar de plattegrond.
* Gezien het bouwjaar van de woning wordt er in de koopovereenkomst een ouderdomsclausule opgenomen en een artikel dat verband houdt met het feit dat de woning een voormalige huurwoning betreft.
 
Gebruiksoppervlakten en inhoud:
* Wonen ca. 104 m²
* Overige inpandige ruimte ca. 2 m²
* Gebouwgebonden buitenruimte ca. 6 m²
* Inhoud ca. 336 m³
 
Bijdrage VvE                : € 257,49 per maand (betalingen gaan van start zodra de woning verkocht is)
Bouwjaar woning         : 1934
Oplevering                   : 10 weken na ondertekening van de koopovereenkomst

Wijk statistieken

Burgerlijke staat (%)

  • Getrouwd
  • Ongehuwd
  • Gescheiden
  • Weduwe(naar)

Leeftijd in gemeente (%)

  • 0 - 15 jaar
  • 15 - 25 jaar
  • 25 - 45 jaar
  • 45 - 56 jaar
  • 65+ jaar

Gezinnen met kinderen

  • % met kinderen
  • % zonder kinderen
  • % éénpersoonshuishouden

Gezinssamenstelling Oud Charlois

  • Getrouwd
  • Ongehuwd
  • Gescheiden
  • Weduwe(naar)

Leeftijd in wijk

  • 0 - 15 jaar
  • 15 - 25 jaar
  • 25 - 45 jaar
  • 45 - 56 jaar
  • 65+ jaar

Documenten

Selecteer de documenten om ze te downloaden

terug naar overzicht
Chat openen
1
Hallo,
Kunnen wij jou ergens mee helpen?