Menu Sluiten

Omschrijving

WONEN OP HOOGTE MET RUIMTE, LICHT EN EEN CENTRALE LIGGING! Op een fijne, centrale locatie in Dordrecht vind je deze keurig onderhouden maisonnette met drie slaapkamers, verdeeld over de tweede en derde verdieping. De woning beschikt over circa 80 m² woonoppervlakte, verdeeld over twee woonlagen, en biedt daarmee verrassend veel...

Lees verder

Kenmerken

  • Status Beschikbaar
  • Prijs € 249.500,- Kosten Koper
  • Woonoppervlakte 80m²
  • Objecttype Appartement
  • Bouwjaar 1961
meer kenmerken bekijken

Kaart

In de omgeving

wijk statistieken

Burgerlijke staat (%)

  • Getrouwd
  • Ongehuwd
  • Gescheiden
  • Weduwe(naar)

Leeftijd in gemeente (%)

  • 0 - 15 jaar
  • 15 - 25 jaar
  • 25 - 45 jaar
  • 45 - 56 jaar
  • 65+ jaar

Gezin met kinderen

  • % met kinderen
  • % zonder kinderen
  • % eenpersoonshuishouden

Overdracht

  • Status Beschikbaar
  • Prijs € 249.500,- Kosten Koper
  • Aanvaarding In Overleg

Bouwvorm

  • Objecttype Appartement
  • Type appartement Maisonnette
  • Bouwjaar 1961
  • Bouwvorm Bestaande Bouw
  • Locatie In Woonwijk, Vrij Uitzicht, Open Ligging

Indeling

  • Woonoppervlakte 80m2
  • Capaciteit 259m3
  • Kamers 4
  • Slaapkamers 3
  • Woonverdiepingen

Energie

  • Warm water Gasboiler Huur
  • Verwarming Blokverwarming
  • Combiketel Nee

Buitenruimte

  • Tuin Geen Tuin

Parkeren

  • Garage Geen Garage
  • Parkeergelegenheid Betaald Parkeren, Parkeervergunningen

Dak

  • Type Plat Dak

Andere

  • Permanent verblijf Ja
  • Bijzonderheden Gestoffeerd
  • Onderhoud binnenshuis Goed
  • Onderhoud binnenshuis Goed
  • Huidig gebruik Woonruimte
  • Huidig doel Woonruimte

Kadastrale gegevens

  • Gemeente Dordrecht
  • Sectie M
  • Kavelnummer 1775
  • Index 27
  • Eigendomssituatie VOLLE_EIGENDOM

Omschrijving

WONEN OP HOOGTE MET RUIMTE, LICHT EN EEN CENTRALE LIGGING! Op een fijne, centrale locatie in Dordrecht vind je deze keurig onderhouden maisonnette met drie slaapkamers, verdeeld over de tweede en derde verdieping. De woning beschikt over circa 80 m² woonoppervlakte, verdeeld over twee woonlagen, en biedt daarmee verrassend veel ruimte voor starters, gezinnen of thuiswerkers.

De woning wordt verwarm met blokverwarming en de VvE zet met een verduurzamingsproject o.a. in op het vervangen van de kozijnen met isolerende beglazing. Op de bovenste woonlaag bevinden zich drie ruime slaapkamers, waardoor iedereen zijn eigen plek heeft. Extra prettig is het royale balkon aan de zonzijde: een heerlijke plek om in de zomer te ontspannen. Voor het opbergen van fietsen en andere spullen is er een eigen berging in de onderbouw.

De ligging is bijzonder praktisch. Winkelcentrum Crabbehof ligt om de hoek voor alle dagelijkse boodschappen. Openbaar vervoer is goed geregeld met een bushalte op circa 8 minuten loopafstand en NS-station Dordrecht Zuid iets verderop. Met de auto ben je snel op de A16 en andere uitvalswegen. Daarnaast bevinden scholen en het Wielwijkpark zich in de directe omgeving. Zin in natuur? Het Nationaal Park De Biesbosch ligt op korte afstand en biedt volop mogelijkheden om te wandelen en fietsen.

Benieuwd naar de ruimte en mogelijkheden van deze woning?

Je bent van harte welkom voor een bezichtiging aan Van Bosseplantsoen 108!

Indeling:
 
* Entree op de begane grond met bellentableau, postbussen, trappenhuis en toegang tot de bergingen. 
* Berging (ca. 6 m²) in de onderbouw van het complex. 

Tweede verdieping:
* Middels de galerij toegang tot de woningentree; hal voorzien van laminaatvloer en toegang tot de woonkamer en keukenruimte.
* Keurige toiletruimte voorzien van duobloktoiletopstelling en betegeling. 
* Keukenruimte voorzien van laminaatvloer en hoekkeukenopstelling met veel kastruimte en apparatuur: gaskookplaat en afzuigkap.
* Woonkamer aan de voorzijde voorzien van laminaatvloer, strakke wanden en plafond, openslaande deuren naar het balkon, 2 vaste kasten, trapkast en trapopgang naar de slaapverdieping. 
* Royal balkon gelegen op het zuiden.

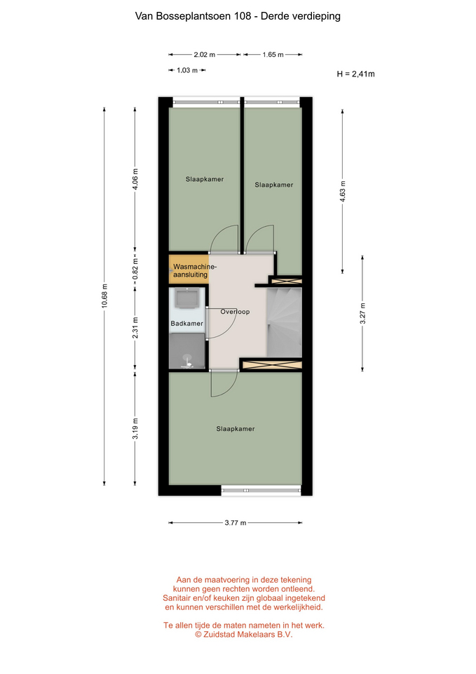
Derde verdieping: 
* Overloop voorzien van laminaatvloer, een nis met de wasmachine-aansluiting en toegang tot de verschillende vertrekken. 
* Slaapkamer I aan de achterzijde voorzien van laminaatvloer, schuifdeur en strakke wanden en plafond 
* Badkamer voorzien van moderne betegeling, douchecabine en wastafelmeubel. 
* Slaapkamer II aan de voorzijde voorzien van laminaatvloer en strakke wanden en plafond.
* Slaapkamer III aan de voorzijde voorzien van vinylvloer en strakke wanden en plafond.
 
Algemeen:

* Eigen grond.
* Voorlopig Energielabel E (definitief label wordt binnenkort vastgesteld).
* De wijk Crabbehof valt onder de opkoopbescherming. Dit houdt in dat een belegger de woning niet kan kopen voor de verhuur, al gelden er uitzonderingen zoals de verhuur aan een kind. Kijk voor meer informatie op de website van de gemeente.
* De woning is geheel voorzien van houten raamkozijnen met enkele beglazing.
* Centrale verwarming middels blokverwarming en warmwatervoorziening middels een huurboiler.
* De VvE-bijdrage is inclusief een bedrag van € 110,-- per maand ter verduurzaming van het complex (o.a. betere beglazing, kunststof kozijnen en zonnepanelen).
* Voor een indicatie van de maatvoering verwijzen wij naar de plattegrond.
* Gezien het bouwjaar van de woning wordt er in de koopovereenkomst een ouderdomsclausule opgenomen.

Gebruiksoppervlakten en inhoud:

* Wonen ca. 80 m²
* Externe bergruimte ca. 6 m²
* Gebouwgebonden buitenruimte ca. 6 m²
* Inhoud ca. 259 m³
 
Bijdrage V.v.E.                  : € 310,-- per maand (exclusief 50,-- voorschot stookkosten)
Huur boiler                        : € 27,-- per maand
Bouwjaar woning              : 1961
Oplevering                        : In onderling overleg

Wijk statistieken

Burgerlijke staat (%)

  • Getrouwd
  • Ongehuwd
  • Gescheiden
  • Weduwe(naar)

Leeftijd in gemeente (%)

  • 0 - 15 jaar
  • 15 - 25 jaar
  • 25 - 45 jaar
  • 45 - 56 jaar
  • 65+ jaar

Gezinnen met kinderen

  • % met kinderen
  • % zonder kinderen
  • % éénpersoonshuishouden

Gezinssamenstelling

  • Getrouwd
  • Ongehuwd
  • Gescheiden
  • Weduwe(naar)

Leeftijd in wijk

  • 0 - 15 jaar
  • 15 - 25 jaar
  • 25 - 45 jaar
  • 45 - 56 jaar
  • 65+ jaar

Documenten

Selecteer de documenten om ze te downloaden

terug naar overzicht
Chat openen
1
Hallo,
Kunnen wij jou ergens mee helpen?