Menu Sluiten
3077 TG ROTTERDAM

Valkenburgsingel 15

Omschrijving

EENGEZINSWONING MET VRIJ UITZICHT OVER EEN SINGEL! De Valkenburgsingel 15 met energielabel A(!) is een gewilde tussenwoning van ca. 112 m² woonoppervlakte met 5 royale kamers en een fijne tuin, gelegen in een rustige straat zónder autoverkeer!  Let op! Deze woning staat op erfpachtgrond, waarvan de canon is afgekocht tot...

Lees verder

Kenmerken

  • Status Verkocht Onder Voorbehoud
  • Prijs € 360.000,- Kosten Koper
  • Woonoppervlakte 112m²
  • Objecttype Woonhuis
  • Bouwjaar 1986
meer kenmerken bekijken

Kaart

In de omgeving

wijk statistieken

Burgerlijke staat (%)

  • Getrouwd
  • Ongehuwd
  • Gescheiden
  • Weduwe(naar)

Leeftijd in gemeente (%)

  • 0 - 15 jaar
  • 15 - 25 jaar
  • 25 - 45 jaar
  • 45 - 56 jaar
  • 65+ jaar

Gezin met kinderen

  • % met kinderen
  • % zonder kinderen
  • % eenpersoonshuishouden

Overdracht

  • Status Verkocht Onder Voorbehoud
  • Prijs € 360.000,- Kosten Koper
  • Aanvaarding In Overleg

Bouwvorm

  • Objecttype Woonhuis
  • Subtype huis TUSSENWONING
  • Bouwjaar 1986
  • Bouwvorm Bestaande Bouw
  • Locatie Aan Water, Aan Rustige Weg, In Woonwijk

Indeling

  • Woonoppervlakte 112m2
  • Capaciteit 409m3
  • Kamers 5
  • Slaapkamers 4
  • Woonverdiepingen

Energie

  • Energie-klasse A
  • Einddatum energie 2035-10-22
  • Isolatie Dubbel Glas
  • Warm water Cv Ketel
  • Verwarming Cv Ketel
  • Bouwjaar ketel 2010
  • Combiketel Ja
  • Brandstof Gas
  • Eigendom Eigendom

Buitenruimte

  • Tuin Achtertuin, Voortuin

Parkeren

  • Garage Geen Garage
  • Parkeergelegenheid Openbaar Parkeren

Dak

  • Type Zadeldak

Andere

  • Permanent verblijf Ja
  • Bijzonderheden Gedeeltelijk Gestoffeerd
  • Onderhoud binnenshuis Goed
  • Onderhoud binnenshuis Goed
  • Huidig gebruik Woonruimte
  • Huidig doel Woonruimte

Kadastrale gegevens

  • Gemeente IJsselmonde
  • Sectie F
  • Kavelnummer 3125
  • Oppervlakte 115
  • Eigendomssituatie EIGENDOM_BELAST_MET_ERFPACHT
  • Gekocht tot 2036-03-31

Omschrijving

EENGEZINSWONING MET VRIJ UITZICHT OVER EEN SINGEL! De Valkenburgsingel 15 met energielabel A(!) is een gewilde tussenwoning van ca. 112 m² woonoppervlakte met 5 royale kamers en een fijne tuin, gelegen in een rustige straat zónder autoverkeer! 
Let op! Deze woning staat op erfpachtgrond, waarvan de canon is afgekocht tot 31 maart 2036!

Via het brede voetpad en de smalle strook voortuin is de woningentree te bereiken, waarna je de hal binnenstapt met de toiletruimte en trapopgang. De heerlijk ruime, tuingerichte woonkamer heeft een open verbinding naar de keukenruimte aan de voorzijde. Op de eerste verdieping bevinden zich drie slaapkamers en de badkamer met 2e toilet. De tweede verdieping biedt een riante, open zolderkamer met de wasmachine-aansluiting. De achtertuin is gelegen op het westen en is voorzien van een stenen schuur. En een pré; via de achtertuin is de grote parkeerplaats aan de achterzijde te bereiken. Maak je hier je droomwoning van?

De woning is gelegen aan een prachtige singel met vlakbij een skatepark, speeltuin, voetbalveld en heerlijke wandelpaden. Op fietsafstand is er een opstapplaats voor de watertaxi en is Winkelcentrum Keizerswaard te bereiken. Op korte afstand bevinden zich uitvalswegen met goede aansluiting op de A15/A16, openbaar vervoer met een tramhalte op loopafstand, winkels en de Jachthaven IJsselmonde. Wat wil je nog meer?

Kom jouw mogelijkheden bekijken! Van harte welkom voor een bezichtiging! 

Indeling:

Begane grond: 
* Smalle strook voortuin met toegang tot de woning. 
* Woningentree, hal voorzien van laminaatvloer; meterkast; trapopgang naar de slaapverdieping. 
* Toiletruimte voorzien van wandtoilet, fonteintje, geheel betegeld en een kast met de opstelling van de C.V.-combiketel.
* Open keukenruimte aan de voorzijde voorzien van laminaatvloer, betegelde achterwand en een inbouwkeuken met apparatuur: inductiekookplaat, afzuigkap, koel-vriescombinatie, vaatwasmachine en combimagnetron. 
* Tuingerichte woonkamer voorzien van laminaatvloer, behangwanden, gespoten plafond, trapkast, open verbinding met de keukenruimte en deur naar de achtertuin.

* Achtertuin, gelegen op het westen, voorzien van bestrating, een gazon, een stenen schuur (ca. 6 m²) en achterom.

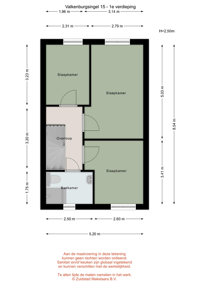
Eerste verdieping:
* Overloop met toegang tot de verschillende vertrekken.
* Slaapkamer I aan de voorzijde voorzien van laminaatvloer.
* Badkamer voorzien van betegeling, inloopdouche, wastafel, tweede wandtoilet en designradiator.
* Slaapkamer II aan de achterzijde.
* Slaapkamer III aan de achterzijde.

Tweede verdieping:
* Ruime zolderkamer IV met een dakraam, de wasmachine-aansluiting en knieschotten.
 
Algemeen: 

* De woning is gelegen op erfpachtgrond, waarvan de canon is afgekocht tot en met 31 maart 2036.
* Energielabel A, geldig tot 22 oktober 2035
* De wijk Beverwaard valt NIET onder de opkoopbescherming. Kijk voor meer informatie op de website van de gemeente Rotterdam.
* De woning is geheel voorzien van kunststof raamkozijnen met dubbele beglazing.
* Centrale, heteluchtverwarming en warmwatervoorziening middels combiketel (Remeha, 2010).
* Aan de foto-presentatie zijn een aantal artist impressions toegevoegd. Deze foto's geven een weergave van hoe het object er na een verbouwing uit kan komen te zien.
* De notariële eigendomsoverdracht van deze woning dient plaats te vinden bij de daartoe aangewezen projectnotaris: NL Notariaat te Etten-Leur.
* Aangezien het een verkoop uit de huur betreft worden er extra artikelen aan de koopovereenkomst toegevoegd. Een concept koopovereenkomst is bij ons op te vragen en wordt na aanvraag van een bezichtiging ook inzichtelijk gemaakt in Move.nl.
* Voor een indicatie van de maatvoering verwijzen wij naar de plattegrond.
* Gezien het bouwjaar van de woning wordt er in de koopovereenkomst een ouderdomsclausule opgenomen en een artikel dat verband houdt met het feit dat de woning een voormalige huurwoning betreft.
 
Gebruiksoppervlakten en inhoud:

* Wonen ca. 112 m²
* Externe bergruimte ca. 6 m²
* Inhoud ca. 409 m³
* Perceel 115 m²

Bouwjaar woning            : 1986
Oplevering                     : 10 weken na ondertekening van de koopovereenkomst

Wijk statistieken

Burgerlijke staat (%)

  • Getrouwd
  • Ongehuwd
  • Gescheiden
  • Weduwe(naar)

Leeftijd in gemeente (%)

  • 0 - 15 jaar
  • 15 - 25 jaar
  • 25 - 45 jaar
  • 45 - 56 jaar
  • 65+ jaar

Gezinnen met kinderen

  • % met kinderen
  • % zonder kinderen
  • % éénpersoonshuishouden

Gezinssamenstelling Beverwaard

  • Getrouwd
  • Ongehuwd
  • Gescheiden
  • Weduwe(naar)

Leeftijd in wijk

  • 0 - 15 jaar
  • 15 - 25 jaar
  • 25 - 45 jaar
  • 45 - 56 jaar
  • 65+ jaar

Documenten

Selecteer de documenten om ze te downloaden

terug naar overzicht
Chat openen
1
Hallo,
Kunnen wij jou ergens mee helpen?