Menu Sluiten
3083 PK ROTTERDAM

Terschellingsestraat 33A

Omschrijving

OP ZOEK NAAR EEN STARTERSAPPARTEMENT OP EEN CENTRALE LOCATIE? Dan is de Terschellingsestraat 33 A echt een mooie optie! De woning is verzorgd, heeft een moderne inbouwkeuken in de woonkamer en 3 fijne slaapkamers. Als kers op de taart is er ook nog een gigantische achtertuin, waar ruimte genoeg is...

Lees verder

Kenmerken

  • Status Beschikbaar
  • Prijs € 250.000,- Kosten Koper
  • Woonoppervlakte 53m²
  • Objecttype Appartement
  • Bouwjaar 1941
meer kenmerken bekijken

Kaart

In de omgeving

wijk statistieken

Burgerlijke staat (%)

  • Getrouwd
  • Ongehuwd
  • Gescheiden
  • Weduwe(naar)

Leeftijd in gemeente (%)

  • 0 - 15 jaar
  • 15 - 25 jaar
  • 25 - 45 jaar
  • 45 - 56 jaar
  • 65+ jaar

Gezin met kinderen

  • % met kinderen
  • % zonder kinderen
  • % eenpersoonshuishouden

Overdracht

  • Status Beschikbaar
  • Prijs € 250.000,- Kosten Koper
  • Aanvaarding In Overleg

Bouwvorm

  • Objecttype Appartement
  • Type appartement Benedenwoning
  • Bouwjaar 1941
  • Bouwvorm Bestaande Bouw
  • Locatie Aan Rustige Weg, In Woonwijk, Beschutte Ligging

Indeling

  • Woonoppervlakte 53m2
  • Capaciteit 170m3
  • Kamers 4
  • Slaapkamers 3
  • Woonverdiepingen

Energie

  • Energie-klasse D
  • Einddatum energie 2035-03-26
  • Isolatie Dubbel Glas
  • Warm water Cv Ketel
  • Verwarming Cv Ketel
  • Bouwjaar ketel 2017
  • Combiketel Ja
  • Brandstof Gas
  • Eigendom Eigendom

Buitenruimte

  • Tuin Achtertuin

Parkeren

  • Garage Geen Garage
  • Parkeergelegenheid Betaald Parkeren, Parkeervergunningen

Dak

  • Type Plat Dak

Andere

  • Permanent verblijf Ja
  • Bijzonderheden Gestoffeerd
  • Onderhoud binnenshuis Goed
  • Onderhoud binnenshuis Goed
  • Huidig gebruik Woonruimte
  • Huidig doel Woonruimte

Kadastrale gegevens

  • Gemeente Charlois
  • Sectie H
  • Kavelnummer 2970
  • Index 1
  • Eigendomssituatie VOLLE_EIGENDOM

Omschrijving

OP ZOEK NAAR EEN STARTERSAPPARTEMENT OP EEN CENTRALE LOCATIE? Dan is de Terschellingsestraat 33 A echt een mooie optie! De woning is verzorgd, heeft een moderne inbouwkeuken in de woonkamer en 3 fijne slaapkamers. Als kers op de taart is er ook nog een gigantische achtertuin, waar ruimte genoeg is om te ontspannen of te tuinieren. Verder is er centrale verwarming middels een eigen combiketel, zijn alle kozijnen van kunststof en voorzien van dubbele beglazing. Zie jij jezelf hier al wonen?

In de omgeving is het ook goed toeven. Om de hoek is een kleinschalig park aan het Amelandseplein en even verder loop je zo het Zuiderpark in voor een heerlijke wandeling of andere ontspanning. Het gebied rond Zuidplein is in trek bij de Rotterdammer en niet alleen vanwege de winkels en de uitstekende verbindingen. Ook op cultureel gebied en als centrum voor leuke uitstapjes kun je er prima kiezen! 

De foto's geven je een eerste indruk, maar een bezichtiging zegt alles!
 
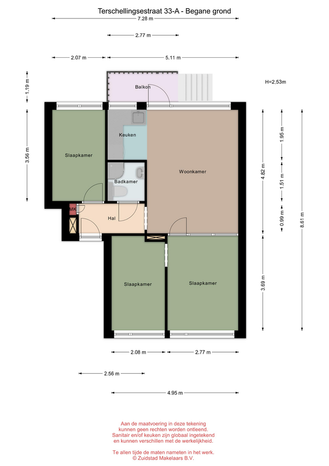
Indeling:
 
* Entree via het afgesloten trappenhuis naar de eerste woonlaag.
* Woningentree met de hal voorzien van laminaatvloer en de meterkast. 
* Woonkamer aan de achterzijde met laminaatvloer, strakke wand- en plafondafwerking, open keuken en glazen wand met toegang tot de slaapkamer aan de voorzijde; deur naar het balkon.
* Open keuken voorzien van moderne hoek-inbouwkeuken met magnetron, koelkast en vaatwasmachine.
* Slaapkamer aan de voorzijde met laminaatvloer, strakke wand- en plafondafwerking en deur naar de tweede slaapkamer. 
* Slaapkamer aan de voorzijde met laminaatvloer en strakke wand- en plafondafwerking.
* Slaapkamer aan de achterzijde met laminaatvloer. 
* Badkamer/ toiletruimte voorzien van moderne betegeling welke beschikt over een wastafel, urinoir en wandtoilet.

* Balkon aan de achterzijde met trapafgang naar de tuin.
* Royale achtertuin, gelegen op het noordwesten met betegeling en nette schuttingen.

Algemeen:

* Eigen grond.
* Energielabel D, geldig tot 26 maart 2035.
* De wijk Carnisse valt onder de opkoopbescherming. Dit houdt in dat een belegger de woning niet kan kopen voor de verhuur, al gelden er uitzonderingen zoals de verhuur aan een kind. Kijk voor meer informatie op de website van de gemeente Rotterdam.
* Centrale verwarming en warmwatervoorziening met een combiketel (Remeha, 2017).
* Geheel voorzien van kunststof kozijnen met dubbele beglazing.
* Voor een indicatie van de maten verwijzen wij u naar bijgevoegde plattegronden. 
* Gezien het bouwjaar van de woning wordt er in de koopovereenkomst een ouderdomsclausule opgenomen.

Gebruiksoppervlakten en inhoud:

* Wonen ca. 53 m²
* Gebouwgebonden buitenruimte ca. 5 m²
* Externe bergruimte ca. 12 m²
* Inhoud ca. 170 m³

Bijdrage V.v.E.            :  € 209,65 per maand  
Bouwjaar woning        :  1941
Oplevering                  :  In onderling overleg

Wijk statistieken

Burgerlijke staat (%)

  • Getrouwd
  • Ongehuwd
  • Gescheiden
  • Weduwe(naar)

Leeftijd in gemeente (%)

  • 0 - 15 jaar
  • 15 - 25 jaar
  • 25 - 45 jaar
  • 45 - 56 jaar
  • 65+ jaar

Gezinnen met kinderen

  • % met kinderen
  • % zonder kinderen
  • % éénpersoonshuishouden

Gezinssamenstelling Carnisse

  • Getrouwd
  • Ongehuwd
  • Gescheiden
  • Weduwe(naar)

Leeftijd in wijk

  • 0 - 15 jaar
  • 15 - 25 jaar
  • 25 - 45 jaar
  • 45 - 56 jaar
  • 65+ jaar

Documenten

Selecteer de documenten om ze te downloaden

terug naar overzicht
Chat openen
1
Hallo,
Kunnen wij jou ergens mee helpen?