Menu Sluiten
3083 WJ ROTTERDAM

Tapuitstraat 73A

Omschrijving

CREEER JE EIGEN THUIS! BENEDENWONING MET TUIN EN RUIME BERGING ONDER DE WONING! Ben jij die handige klusser die een betaalbare woning met goede buitenruimte zoekt? Dan is Deze 3-kamerwoning aan de Tapuitstraat 73 A wat voor jou! Aan de voorzijde zijn 2 slaapkamers en via de tuingerichte woonkamer is...

Lees verder

Kenmerken

  • Status Verkocht Onder Voorbehoud
  • Prijs € 199.500,- Kosten Koper
  • Woonoppervlakte 46m²
  • Objecttype Appartement
  • Bouwjaar 1947
meer kenmerken bekijken

Kaart

In de omgeving

wijk statistieken

Burgerlijke staat (%)

  • Getrouwd
  • Ongehuwd
  • Gescheiden
  • Weduwe(naar)

Leeftijd in gemeente (%)

  • 0 - 15 jaar
  • 15 - 25 jaar
  • 25 - 45 jaar
  • 45 - 56 jaar
  • 65+ jaar

Gezin met kinderen

  • % met kinderen
  • % zonder kinderen
  • % eenpersoonshuishouden

Overdracht

  • Status Verkocht Onder Voorbehoud
  • Prijs € 199.500,- Kosten Koper
  • Aanvaarding In Overleg

Bouwvorm

  • Objecttype Appartement
  • Type appartement Portiekflat
  • Bouwjaar 1947
  • Bouwvorm Bestaande Bouw
  • Locatie Aan Rustige Weg, In Woonwijk, Beschutte Ligging

Indeling

  • Woonoppervlakte 46m2
  • Capaciteit 158m3
  • Kamers 3
  • Slaapkamers 2
  • Woonverdiepingen

Energie

  • Energie-klasse E
  • Einddatum energie 2030-02-12
  • Warm water Cv Ketel
  • Verwarming Cv Ketel
  • Bouwjaar ketel 2017
  • Combiketel Ja
  • Brandstof Gas
  • Eigendom Eigendom

Buitenruimte

  • Tuin Achtertuin

Parkeren

  • Garage Geen Garage
  • Parkeergelegenheid Betaald Parkeren, Parkeervergunningen

Dak

  • Type Zadeldak

Andere

  • Permanent verblijf Ja
  • Bijzonderheden Gestoffeerd
  • Onderhoud binnenshuis Goed
  • Onderhoud binnenshuis Goed
  • Huidig gebruik Woonruimte
  • Huidig doel Woonruimte

Kadastrale gegevens

  • Gemeente Charlois
  • Sectie I
  • Kavelnummer 731
  • Index 6
  • Eigendomssituatie VOLLE_EIGENDOM

Omschrijving

CREEER JE EIGEN THUIS! BENEDENWONING MET TUIN EN RUIME BERGING ONDER DE WONING! Ben jij die handige klusser die een betaalbare woning met goede buitenruimte zoekt? Dan is Deze 3-kamerwoning aan de Tapuitstraat 73 A wat voor jou!

Aan de voorzijde zijn 2 slaapkamers en via de tuingerichte woonkamer is er toegang tot de keukenruimte aan de achterzijde. Een pré is de ruime achtertuin van maar liefst ca. 63 m² waar je naar hartenlust kunt tuinieren. Verder zijn er functionele sanitaire voorzieningen en is er centrale verwarming middels een eigen C.V.-combiketel. In de onderbouw is een royale berging van ca. 13 m². Maak jij hier een pareltje van?

In de sfeervolle wijk Carnisse woon je heerlijk rustig, maar toch op een paar minuten van het levendige hart van Rotterdam-Zuid. Deze buurt heeft de afgelopen jaren een indrukwekkende transformatie doorgemaakt. Zo kreeg Ahoy een moderne uitbreiding, verrees er een 50-meter zwembad én het nieuwe Kunstenpand met theater en bibliotheek. Daarnaast vind je in de omgeving gezellige eettentjes en is het vernieuwde Winkelcentrum Zuidplein, met metro- en busstation, dé plek voor al je dagelijkse boodschappen en meer. Ook aan groen is geen gebrek: het uitgestrekte Zuiderpark ligt praktisch om de hoek en biedt volop ruimte om te wandelen, sporten of gewoon lekker te ontspannen. En moet je de stad uit? Binnen zo’n 7 minuten zit je op de snelweg. Bovendien ben je via de Maastunnel zo in het centrum. Kortom: Carnisse combineert comfort, dynamiek en bereikbaarheid op een ideale manier.

Maak een afspraak en wees welkom voor een bezichtiging!

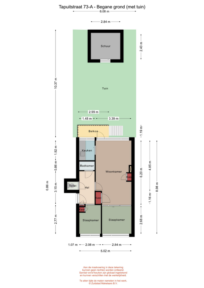
Indeling:

* Gesloten portiek met brievenbussen, intercominstallatie, toegang tot de kelderbergingen.
* Ruime berging (ca. 13 m²) in de onderbouw.

Eerste woonlaag:
* Woningentree; hal voorzien van laminaatvloer; meterkast en toegang tot verschillende vertrekken.
* Toiletruimte voorzien van duoblok-toiletopstelling en gedeeltelijk betegeld. 
* Badkamer voorzien van doucheruimte en gedeeltelijk betegeld.
* Slaapkamer I aan de voorzijde voorzien van laminaatvloer, vaste kast en nette wand- en plafondafwerking.
* Woonkamer voorzien van laminaatvloer, nette wand- en plafondafwerking, vaste kast, open verbinding naar de keukenruimte, deur naar de achtertuin.
* Keukenruimte met gedeeltelijk betegelde wanden, functionele keukenopstelling voorzien van spoelbak, opbergruimte en de opstelling van de C.V.-combiketel.
* Slaapkamer II aan de voorzijde voorzien van laminaatvloer en nette wand- en plafondafwerking.

Achtertuin:
* Royale achtertuin van maar liefst ca. 63 m² gelegen op het westen, met een balkon, een oude schuur, bestrating en veel groen.

Algemeen:

* Eigen grond.
* Energielabel E, geldig tot 12 februari 2030.
* De wijk Carnisse valt onder de opkoopbescherming. Dit houdt in dat een belegger de woning niet kan kopen voor de verhuur, al gelden er uitzonderingen zoals de verhuur aan een kind. Kijk voor meer informatie op de website van de gemeente Rotterdam.
* Centrale verwarming en warmwatervoorziening middels een huur combiketel (Intergas, 2017).
* De woning is geheel voorzien van houten raamkozijnen met enkele beglazing.
* Gezien het bouwjaar van de woning wordt er in de koopovereenkomst een ouderdomsclausule opgenomen en een artikel dat verband houd met het feit dat de woning een voormalige huurwoning betreft.
* Voor een indicatie van de maatvoering verwijzen wij naar de plattegrond.

Gebruiksoppervlakten en inhoud:

* Wonen ca. 46 m²
* Gebouw gebonden buitenruimte ca. 4 m²
* Externe bergruimte ca. 20 m²
* Inhoud ca. 158 m³

Bijdrage V.v.E.           : € 107,81 per maand
Bouwjaar woning       : 1947
Oplevering                : In onderling overleg, kan snel

Wijk statistieken

Burgerlijke staat (%)

  • Getrouwd
  • Ongehuwd
  • Gescheiden
  • Weduwe(naar)

Leeftijd in gemeente (%)

  • 0 - 15 jaar
  • 15 - 25 jaar
  • 25 - 45 jaar
  • 45 - 56 jaar
  • 65+ jaar

Gezinnen met kinderen

  • % met kinderen
  • % zonder kinderen
  • % éénpersoonshuishouden

Gezinssamenstelling Carnisse

  • Getrouwd
  • Ongehuwd
  • Gescheiden
  • Weduwe(naar)

Leeftijd in wijk

  • 0 - 15 jaar
  • 15 - 25 jaar
  • 25 - 45 jaar
  • 45 - 56 jaar
  • 65+ jaar

Documenten

Selecteer de documenten om ze te downloaden

terug naar overzicht
Chat openen
1
Hallo,
Kunnen wij jou ergens mee helpen?