Menu Sluiten
3074 BV ROTTERDAM

Randweg 114B

Omschrijving

INSTAPKLARE BENEDENWONING MET TUIN OP EEN CENTRALE LOCATIE. Aan de Randweg 114-B vind je deze verzorgde benedenwoning met een prettige achtertuin. De woning is gelegen aan een brede en karakteristieke straat, waarbij de singel en tramlijn het straatbeeld vormen. Zie jij jezelf hier al wonen? De woning beschikt over een ruime...

Lees verder

Kenmerken

  • Status Verkocht Onder Voorbehoud
  • Prijs € 249.500,- Kosten Koper
  • Woonoppervlakte 70m²
  • Objecttype Appartement
  • Bouwjaar 1927
meer kenmerken bekijken

Kaart

In de omgeving

wijk statistieken

Burgerlijke staat (%)

  • Getrouwd
  • Ongehuwd
  • Gescheiden
  • Weduwe(naar)

Leeftijd in gemeente (%)

  • 0 - 15 jaar
  • 15 - 25 jaar
  • 25 - 45 jaar
  • 45 - 56 jaar
  • 65+ jaar

Gezin met kinderen

  • % met kinderen
  • % zonder kinderen
  • % eenpersoonshuishouden

Overdracht

  • Status Verkocht Onder Voorbehoud
  • Prijs € 249.500,- Kosten Koper
  • Aanvaarding In Overleg

Bouwvorm

  • Objecttype Appartement
  • Type appartement Benedenwoning
  • Bouwjaar 1927
  • Bouwvorm Bestaande Bouw
  • Locatie Aan Drukke Weg, In Woonwijk, Open Ligging

Indeling

  • Woonoppervlakte 70m2
  • Capaciteit 233m3
  • Kamers 2
  • Slaapkamers 1
  • Woonverdiepingen

Energie

  • Energie-klasse C
  • Einddatum energie 2030-08-17
  • Isolatie Dubbel Glas
  • Warm water Cv Ketel
  • Verwarming Cv Ketel
  • Bouwjaar ketel 2016
  • Combiketel Ja
  • Brandstof Gas
  • Eigendom Eigendom

Buitenruimte

  • Tuin Achtertuin

Parkeren

  • Garage Geen Garage
  • Parkeergelegenheid Betaald Parkeren, Parkeervergunningen

Dak

  • Type Zadeldak

Andere

  • Permanent verblijf Ja
  • Bijzonderheden Gestoffeerd
  • Onderhoud binnenshuis Goed
  • Onderhoud binnenshuis Goed
  • Huidig gebruik Woonruimte
  • Huidig doel Woonruimte

Kadastrale gegevens

  • Gemeente Rotterdam
  • Sectie V
  • Kavelnummer 4128
  • Index 1
  • Eigendomssituatie VOLLE_EIGENDOM

Omschrijving

INSTAPKLARE BENEDENWONING MET TUIN OP EEN CENTRALE LOCATIE. Aan de Randweg 114-B vind je deze verzorgde benedenwoning met een prettige achtertuin. De woning is gelegen aan een brede en karakteristieke straat, waarbij de singel en tramlijn het straatbeeld vormen. Zie jij jezelf hier al wonen?

De woning beschikt over een ruime en lichte woonkamer aan de voorzijde met vrij uitzicht over de singel. Aan de achterzijde bevindt zich een comfortabele slaapkamer met direct zicht op de tuin. De keuken en het sanitair zijn verzorgd en strak ingericht. Daarnaast is er volop bergruimte dankzij de vaste kasten én een handige kelderruimte onder de woning. De achtertuin vormt een heerlijke verlenging van de woonruimte: groot genoeg voor een gezellig zitje en om in alle rust van het buitenleven te genieten.

De ligging van de woning is overigens zeer centraal, met een snelle verbinding naar de rondwegen en diverse voorzieningen in de directe omgeving. Op loopafstand vind je het uitgebreide winkelaanbod aan de Boulevard-Zuid, terwijl ook de Kop van Zuid en winkelcentrum Zuidplein eenvoudig te bereiken zijn. Scholen en openbaar vervoer (tram, bus en metro) bevinden zich in de nabije omgeving en met de fiets sta je binnen een handomdraai in het centrum van de stad.

Van harte welkom voor een bezichtiging!

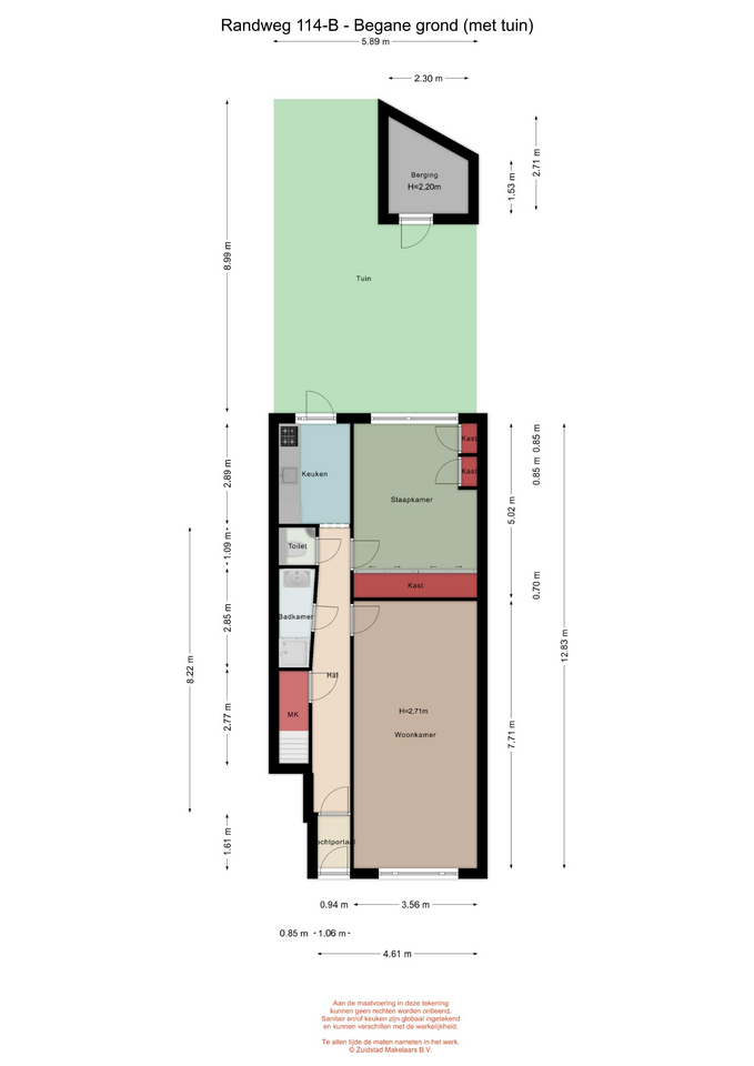
Indeling: 

* Eigen woningentree vanaf de straat; tochtportaal; gang voorzien van laminaatvloer, meterkast met opbergruimte, een trapafgang naar de kelder en toegang tot alle vertrekken. 
* Royale woonkamer van ca. 27 m² aan de voorzijde met veel lichtinval en voorzien van laminaatvloer en gestuukte wanden en plafond.
* Slaapkamer aan de achterzijde voorzien van laminaatvloer, 2 vaste kasten, een schuifkast en gestuukte wanden en plafond.
* Keukenruimte voorzien van tegelvloer en nette inbouwkeuken met apparatuur: gaskookplaat, koelkast, combimagnetron, vaatwasmachine en afzuigkap; deur naar de achtertuin. 
* Badkamer voorzien van lichte betegeling, douchecabine, wastafelmeubel, designradiator en mechanische ventilatie.
* Toiletruimte voorzien van betegeling, wandtoilet en fonteintje.
* Kelderruimte te bereiken via de woning (ca. 10 m²) . 

* Tuin aan de achterzijde op het noordoosten voorzien van bestrating, een border voor beplanting en een houten schuur (5 m²).
 
Algemeen:

* Eigen grond.
* Energielabel C, geldig tot 17 augustus 2030.
* De wijk Hillesluis valt onder de opkoopbescherming. Dit houdt in dat een belegger de woning niet kan kopen voor de verhuur, al gelden er uitzonderingen zoals de verhuur aan een kind. Kijk voor meer informatie op de website van de gemeente Rotterdam.
* De woning is geheel voorzien van kunststof raamkozijnen met dubbele beglazing.
* Centrale verwarming en warmwatervoorziening middels combiketel (Intergas, 2016).
* Voor een indicatie van de maatvoering verwijzen wij naar de plattegrond.
* Gezien het bouwjaar van de woning wordt er in de koopovereenkomst een ouderdomsclausule opgenomen en een artikel dat verband houdt met het feit dat de woning een voormalige huurwoning betreft.
 
Gebruiksoppervlakten en inhoud:

* Wonen ca. 70 m²
* Overig inpandige ruimte ca. 10 m²
* Externe bergruimte ca. 5 m²
* Inhoud ca. 233 m³
  
Bijdrage V.v.E.                   : € 81,-- per maand
Bouwjaar woning               : 1927
Oplevering                        : Kan snel!

Wijk statistieken

Burgerlijke staat (%)

  • Getrouwd
  • Ongehuwd
  • Gescheiden
  • Weduwe(naar)

Leeftijd in gemeente (%)

  • 0 - 15 jaar
  • 15 - 25 jaar
  • 25 - 45 jaar
  • 45 - 56 jaar
  • 65+ jaar

Gezinnen met kinderen

  • % met kinderen
  • % zonder kinderen
  • % éénpersoonshuishouden

Gezinssamenstelling

  • Getrouwd
  • Ongehuwd
  • Gescheiden
  • Weduwe(naar)

Leeftijd in wijk

  • 0 - 15 jaar
  • 15 - 25 jaar
  • 25 - 45 jaar
  • 45 - 56 jaar
  • 65+ jaar

Documenten

Selecteer de documenten om ze te downloaden

terug naar overzicht
Chat openen
1
Hallo,
Kunnen wij jou ergens mee helpen?