Menu Sluiten

Omschrijving

ZOEK JIJ EEN AANTREKKELIJKE EENGEZINSWONING MET RUIMTE EN IN DE LUWTE VAN DE STAD?! Dan is dit een prachtige optie! Gelegen in een rustige en groene wijk van IJsselmonde mogen wij de Optenoord 12 aanbieden, een royale tussenwoning met energielabel B, 5 ruime kamers, op een perceel van 126 m²...

Lees verder

Kenmerken

  • Status Beschikbaar
  • Prijs € 375.000,- Kosten Koper
  • Woonoppervlakte 120m²
  • Objecttype Woonhuis
  • Bouwjaar 1981
meer kenmerken bekijken

Kaart

In de omgeving

wijk statistieken

Burgerlijke staat (%)

  • Getrouwd
  • Ongehuwd
  • Gescheiden
  • Weduwe(naar)

Leeftijd in gemeente (%)

  • 0 - 15 jaar
  • 15 - 25 jaar
  • 25 - 45 jaar
  • 45 - 56 jaar
  • 65+ jaar

Gezin met kinderen

  • % met kinderen
  • % zonder kinderen
  • % eenpersoonshuishouden

Overdracht

  • Status Beschikbaar
  • Prijs € 375.000,- Kosten Koper
  • Aanvaarding In Overleg

Bouwvorm

  • Objecttype Woonhuis
  • Subtype huis TUSSENWONING
  • Bouwjaar 1981
  • Bouwvorm Bestaande Bouw
  • Locatie Aan Rustige Weg, In Woonwijk, Beschutte Ligging

Indeling

  • Woonoppervlakte 120m2
  • Capaciteit 433m3
  • Kamers 5
  • Slaapkamers 3
  • Woonverdiepingen

Energie

  • Energie-klasse B
  • Einddatum energie 2035-05-14
  • Isolatie Dubbel Glas, Hr Glas
  • Warm water Cv Ketel
  • Verwarming Cv Ketel
  • Bouwjaar ketel 2018
  • Combiketel Ja
  • Brandstof Gas
  • Eigendom Eigendom

Buitenruimte

  • Tuin Achtertuin, Voortuin

Parkeren

  • Garage Geen Garage
  • Parkeergelegenheid Betaald Parkeren, Parkeervergunningen

Dak

  • Type Zadeldak

Andere

  • Permanent verblijf Ja
  • Bijzonderheden Gestoffeerd
  • Onderhoud binnenshuis Goed
  • Onderhoud binnenshuis Goed
  • Huidig gebruik Woonruimte
  • Huidig doel Woonruimte

Kadastrale gegevens

  • Gemeente IJsselmonde
  • Sectie B
  • Kavelnummer 5816
  • Oppervlakte 120
  • Eigendomssituatie VOLLE_EIGENDOM

Omschrijving

ZOEK JIJ EEN AANTREKKELIJKE EENGEZINSWONING MET RUIMTE EN IN DE LUWTE VAN DE STAD?! Dan is dit een prachtige optie! Gelegen in een rustige en groene wijk van IJsselmonde mogen wij de Optenoord 12 aanbieden, een royale tussenwoning met energielabel B, 5 ruime kamers, op een perceel van 126 m² EIGEN GROND, met zowel een voor- als achtertuin en omgeven door veel groen aan de rand van Rotterdam. Ga jij de uitdaging aan om hier jouw paleisje van te maken?

De woning is gelegen in Rotterdam-IJsselmonde met in de nabije omgeving een supermarkt en veel groen. Door de wijk rijd een bus, aan de Reyerdijk is een tramhalte en verderop het Maasstad Ziekenhuis. De directe omgeving ademt de sfeer van een dorps karakter. Er is een goede aansluiting op de ring rond Rotterdam (A15 en A16) en voor een winkelcentrum kun je bijvoorbeeld terecht in het hart van IJsselmonde; winkelcentrum Keizerswaard. Ook zijn er in de achtergelegen wijk Reyeroord basisscholen.

Kortom; dit wil je! Graag laat één van onze makelaars je deze woning zien. Van harte welkom voor een bezichtiging! 

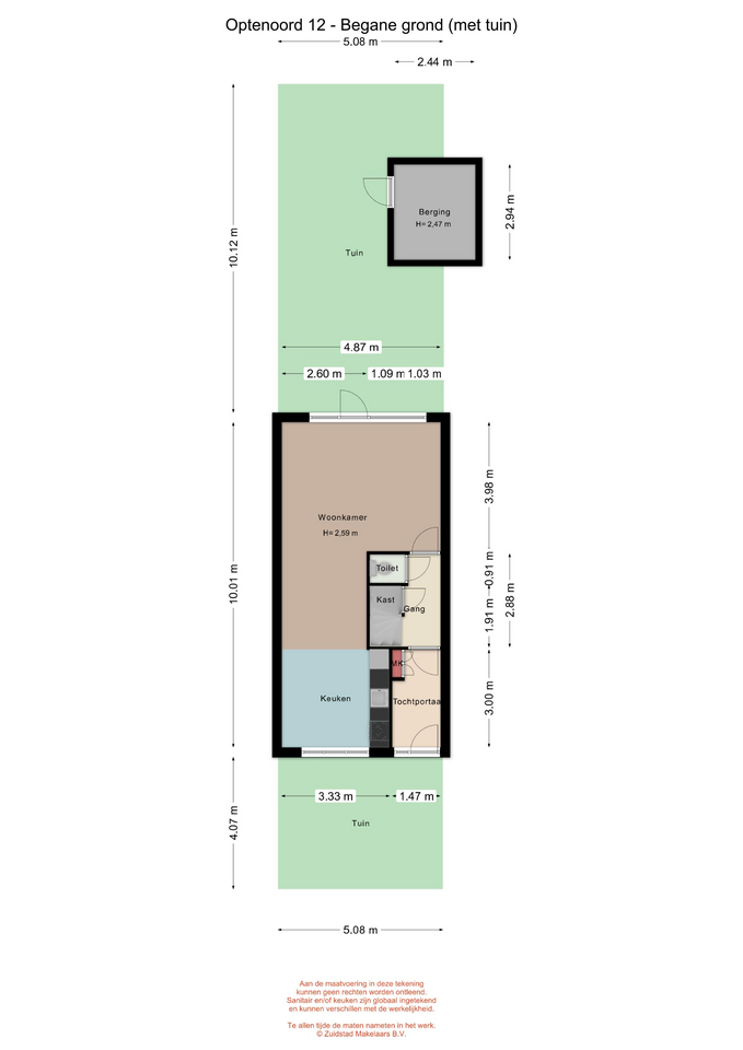
Indeling: 
 
* Voortuin voorzien van bestrating en groen; toegang tot de woning.
* Woningentree; tochtportaal met de meterkast; gang met de trapopgang, trapkast en toegang tot de woonkamer. 
* Toiletruimte voorzien van wandtoilet, fonteintje en geheel betegeld.
* L-vormige woonkamer met open keuken voorzien van behangwanden, open verbinding met de keukenruimte en een deur naar de achtertuin. 
* Keukenruimte aan de voorzijde voorzien van inbouwkeuken met een betegelde achterwand en apparatuur: inductie kookplaat, afzuigkap, combimagnetron, vaatwasmachine en koel-vriescombinatie. 
* Heerlijke achtertuin, gelegen op het oosten, voorzien van bestrating, een stenen schuur (ca. 7 m²) en een achterom. Achter de woningen is een speelplaats (mandelig perceel) voor de kinderen. 

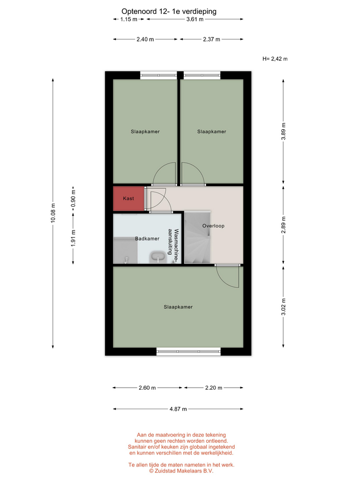
Eerste verdieping: 
* Overloop voorzien van laminaatvloer met een grote vaste kast en toegang tot de verschillende vertrekken. 
* Royale slaapkamer I aan de voorzijde voorzien van laminaatvloer.
* Slaapkamer II aan de achterzijde voorzien van laminaatvloer. 
* Slaapkamer III aan de achterzijde voorzien van laminaatvloer.
* Badkamer voorzien van lichte betegeling, inloopdouche, wastafel en de wasmachine-aansluiting. 

Tweede verdieping: 
* Royale open zolderverdieping met een dakraam en de opstelling van de C.V.-combiketel. 
 
Algemeen: 

* Eigen grond.
* Energielabel B, geldig tot 14 mei 2035.
* De wijk Groot-IJsselmonde valt onder de opkoopbescherming. Dit houdt in dat een belegger de woning niet kan kopen voor de verhuur, al gelden er uitzonderingen zoals de verhuur aan een kind. Kijk voor meer informatie op de website van de gemeente Rotterdam.
* De woning is geheel voorzien van hardhouten raamkozijnen met dubbele of HR++ beglazing (2023).
* Centrale verwarming en warmwatervoorziening middels combiketel (Intergas, 2018).
* Aan de foto-presentatie zijn een aantal artist impressions toegevoegd. Deze foto's geven een weergave van hoe het object er na een verbouwing uit kan komen te zien.
* De notariële eigendomsoverdracht van deze woning dient plaats te vinden bij de daartoe aangewezen projectnotaris: NL Notariaat te Etten-Leur.
* Aangezien het een verkoop uit de huur betreft worden er extra artikelen aan de koopovereenkomst toegevoegd. Een concept koopovereenkomst is bij ons op te vragen en wordt na aanvraag van een bezichtiging ook inzichtelijk gemaakt in Move.nl.
* Voor een indicatie van de maatvoering verwijzen wij naar de plattegrond.
* Gezien het bouwjaar van de woning wordt er in de koopovereenkomst een ouderdomsclausule opgenomen en een artikel dat verband houdt met het feit dat de woning een voormalige huurwoning betreft.
 
Gebruiksoppervlakten en inhoud: 

* Wonen ca. 120 m²
* Externe bergruimte ca. 7 m²
* Inhoud ca. 433 m³
* Perceel 126 m²

Bouwjaar woning             : 1981
Oplevering                      : 10 weken na ondertekening van de koopovereenkomst

Wijk statistieken

Burgerlijke staat (%)

  • Getrouwd
  • Ongehuwd
  • Gescheiden
  • Weduwe(naar)

Leeftijd in gemeente (%)

  • 0 - 15 jaar
  • 15 - 25 jaar
  • 25 - 45 jaar
  • 45 - 56 jaar
  • 65+ jaar

Gezinnen met kinderen

  • % met kinderen
  • % zonder kinderen
  • % éénpersoonshuishouden

Gezinssamenstelling

  • Getrouwd
  • Ongehuwd
  • Gescheiden
  • Weduwe(naar)

Leeftijd in wijk

  • 0 - 15 jaar
  • 15 - 25 jaar
  • 25 - 45 jaar
  • 45 - 56 jaar
  • 65+ jaar

Documenten

Selecteer de documenten om ze te downloaden

terug naar overzicht
Chat openen
1
Hallo,
Kunnen wij jou ergens mee helpen?