Menu Sluiten

Omschrijving

DROOM JIJ VAN JE EIGEN WONING MET EEN GROTE TUIN? Op deze locatie kan jouw droom werkelijkheid worden, want de Mijnsherenlaan 45 A is er zo één! Deze 2-kamerwoning heeft een praktische indeling met de lichte woonkamer aan de voorzijde en en de slaapkamer aan de tuinzijde. De keukenruimte en...

Lees verder

Kenmerken

  • Status Beschikbaar
  • Prijs € 239.500,- Kosten Koper
  • Woonoppervlakte 60m²
  • Objecttype Appartement
  • Bouwjaar 1938
meer kenmerken bekijken

Kaart

In de omgeving

wijk statistieken

Burgerlijke staat (%)

  • Getrouwd
  • Ongehuwd
  • Gescheiden
  • Weduwe(naar)

Leeftijd in gemeente (%)

  • 0 - 15 jaar
  • 15 - 25 jaar
  • 25 - 45 jaar
  • 45 - 56 jaar
  • 65+ jaar

Gezin met kinderen

  • % met kinderen
  • % zonder kinderen
  • % eenpersoonshuishouden

Overdracht

  • Status Beschikbaar
  • Prijs € 239.500,- Kosten Koper
  • Aanvaarding In Overleg

Bouwvorm

  • Objecttype Appartement
  • Type appartement Benedenwoning
  • Bouwjaar 1938
  • Bouwvorm Bestaande Bouw
  • Locatie In Woonwijk, Vrij Uitzicht, Open Ligging

Indeling

  • Woonoppervlakte 60m2
  • Capaciteit 200m3
  • Kamers 2
  • Slaapkamers 1
  • Woonverdiepingen

Energie

  • Energie-klasse G
  • Einddatum energie 2030-09-29
  • Isolatie Dubbel Glas
  • Warm water Cv Ketel
  • Verwarming Cv Ketel
  • Bouwjaar ketel 2021
  • Combiketel Ja
  • Brandstof Gas
  • Eigendom Eigendom

Buitenruimte

  • Tuin Achtertuin

Parkeren

  • Garage Geen Garage
  • Parkeergelegenheid Betaald Parkeren, Parkeervergunningen

Dak

  • Type Plat Dak

Andere

  • Permanent verblijf Ja
  • Bijzonderheden Gestoffeerd
  • Onderhoud binnenshuis Redelijk
  • Onderhoud binnenshuis Goed
  • Huidig gebruik Woonruimte
  • Huidig doel Woonruimte

Kadastrale gegevens

  • Gemeente Charlois
  • Sectie G
  • Kavelnummer 4154
  • Index 9
  • Eigendomssituatie VOLLE_EIGENDOM

Omschrijving

DROOM JIJ VAN JE EIGEN WONING MET EEN GROTE TUIN? Op deze locatie kan jouw droom werkelijkheid worden, want de Mijnsherenlaan 45 A is er zo één! Deze 2-kamerwoning heeft een praktische indeling met de lichte woonkamer aan de voorzijde en en de slaapkamer aan de tuinzijde. De keukenruimte en sanitaire voorzieningen zijn functioneel en er is een ruime bergkast in de hal. Via de achterzijde is er toegang tot het balkon en de royale achtertuin die geheel naar eigen smaak in te richten is. De woning is naast een eigen C.V.-installatie volledig voorzien van kunststof kozijnen. Als extraatje is er een ruime berging in de onderbouw van zo'n 12 m², ideaal voor extra opslag!

Hier woon je midden in de dynamiek van Zuid, met alles wat de stad zo bijzonder maakt binnen handbereik. De ligging is perfect: op steenworp afstand vind je het hippe Katendrecht, de gezellige Wilhelminakade en het kleurrijke Afrikaanderplein. Ook het stadscentrum is snel bereikbaar: met de fiets, auto of het openbaar vervoer. Metro- en tramstation Maashaven liggen namelijk bijna voor de deur, waardoor je in no time overal in de stad bent. De buurt zelf is volop in ontwikkeling. Zuidplein heeft een complete metamorfose ondergaan, met een vernieuwd bus-/ en metrostation en een modern overdekt winkelcentrum met sfeervolle wandelpromenade. Aan de andere kant van de Maashaven verrijst het nieuwe Nelson Mandelapark: een groen stadspark bij de iconische Maassilo dat de wijk nóg aantrekkelijker maakt.

Van harte welkom voor een vrijblijvende bezichtiging!

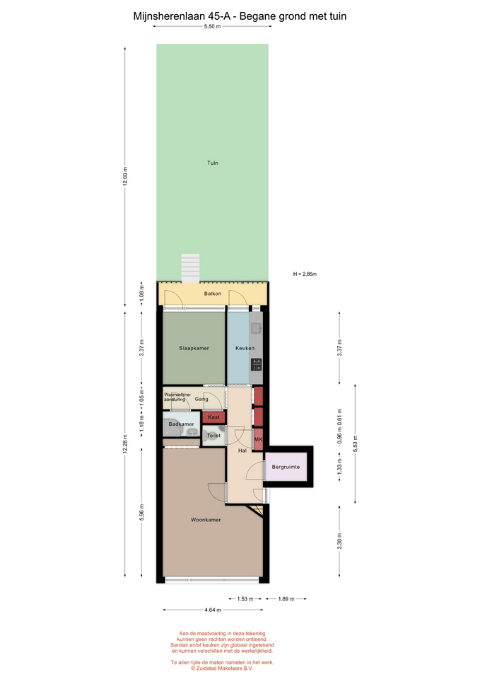
Indeling: 

* Middels afgesloten portiek met trapopgang naar de verdiepingen en bergingen.
* Eigen berging in de onderbouw (ca. 12 m²). 

Eerste woonlaag: 
* Woningentree; ruime hal voorzien van laminaatvloer, ruime gangkast, meterkast en toegang tot de verschillende vertrekken. 
* Woonkamer in L-vorm, gelegen aan de voorzijde voorzien van laminaatvloer, gestuukte wanden en plafond schouw met opstelling van een gashaard.
* Bergruimte voorzien van laminaatvloer. 
* Toiletruimte voorzien van duoblok-toiletopstelling en gedeeltelijk licht betegeld.
* Keuken bestaande uit een functionele keukenopstelling met een los gasfornuis, afzuigkap en de opstelling van de C.V.-combiketel. Eveneens een deur naar de achtertuin.  
* Gang met laminaatvloer, wasmachine-aansluiting, vaste kast en toegang tot de slaapkamer en badkamer.
* Slaapkamer aan de achterzijde voorzien van vinylvloer, gestuukte wanden en plafond en deur naar de achtertuin.
* Badkamer voorzien van douchecabine, wastafel en lichte betegeling. 

* Achtertuin (ca. 66 m²) met aan balkon over de hele breedte van het appartement, gelegen op het westen, voorzien van bestrating en mogelijkheid tot creëren van een achterom naar de achtergelegen speeltuin. 

Algemeen:

* Eigen grond.
* Energielabel G, geldig tot 29 september 2030.
* De Tarwewijk valt onder de opkoopbescherming. Dit houdt in dat een belegger de woning niet kan kopen voor de verhuur, al gelden er uitzonderingen zoals de verhuur aan een kind. Kijk voor meer informatie op de website van de gemeente Rotterdam.
* De woning is geheel voorzien van kunststof raamkozijnen met dubbele beglazing.
* Centrale verwarming en warmwatervoorziening middels combiketel (Intergas, 2021).
* Voor een indicatie van de maatvoering verwijzen wij naar de plattegrond.
* Gezien het bouwjaar van de woning wordt er in de koopovereenkomst een ouderdomsclausule opgenomen en een artikel dat verband houdt met het feit dat de woning een voormalige huurwoning betreft.

Gebruiksoppervlakten en inhoud:

* Wonen ca. 60 m²
* Gebouwgebonden buitenruimte ca. 5 m²
* Externe bergruimte ca. 12 m²       
* Inhoud ca. 200 m³

Bijdrage V.v.E.        : € 150,45 per maand
Bouwjaar woning    : 1938
Oplevering              : Kan snel

Wijk statistieken

Burgerlijke staat (%)

  • Getrouwd
  • Ongehuwd
  • Gescheiden
  • Weduwe(naar)

Leeftijd in gemeente (%)

  • 0 - 15 jaar
  • 15 - 25 jaar
  • 25 - 45 jaar
  • 45 - 56 jaar
  • 65+ jaar

Gezinnen met kinderen

  • % met kinderen
  • % zonder kinderen
  • % éénpersoonshuishouden

Gezinssamenstelling Tarwewijk

  • Getrouwd
  • Ongehuwd
  • Gescheiden
  • Weduwe(naar)

Leeftijd in wijk

  • 0 - 15 jaar
  • 15 - 25 jaar
  • 25 - 45 jaar
  • 45 - 56 jaar
  • 65+ jaar

Documenten

Selecteer de documenten om ze te downloaden

terug naar overzicht
Chat openen
1
Hallo,
Kunnen wij jou ergens mee helpen?