Menu Sluiten

Omschrijving

HOEK- BENEDENAPPARTEMENT MET EEN EIGEN TUIN. Op zoek naar een woning met buitenruimte? Deze 2-kamer benedenwoning beschikt over een heerlijke eigen tuin van maar liefst ca. 83 m² én een solide basis. De woning is volledig voorzien van kunststof kozijnen en heeft een eigen cv-combiketel voor comfortabele verwarming. De ruime...

Lees verder

Kenmerken

  • Status Beschikbaar
  • Prijs € 289.500,- Kosten Koper
  • Woonoppervlakte 44m²
  • Objecttype Appartement
  • Bouwjaar 1940
meer kenmerken bekijken

Kaart

In de omgeving

wijk statistieken

Burgerlijke staat (%)

  • Getrouwd
  • Ongehuwd
  • Gescheiden
  • Weduwe(naar)

Leeftijd in gemeente (%)

  • 0 - 15 jaar
  • 15 - 25 jaar
  • 25 - 45 jaar
  • 45 - 56 jaar
  • 65+ jaar

Gezin met kinderen

  • % met kinderen
  • % zonder kinderen
  • % eenpersoonshuishouden

Overdracht

  • Status Beschikbaar
  • Prijs € 289.500,- Kosten Koper
  • Aanvaarding In Overleg

Bouwvorm

  • Objecttype Appartement
  • Type appartement Portiekflat
  • Bouwjaar 1940
  • Bouwvorm Bestaande Bouw
  • Locatie Aan Rustige Weg, In Woonwijk

Indeling

  • Woonoppervlakte 44m2
  • Capaciteit 152m3
  • Kamers 3
  • Slaapkamers 1
  • Woonverdiepingen

Energie

  • Energie-klasse C
  • Einddatum energie 2030-12-26
  • Isolatie Dubbel Glas
  • Warm water Cv Ketel
  • Verwarming Cv Ketel
  • Bouwjaar ketel 2012
  • Combiketel Ja
  • Brandstof Gas
  • Eigendom Eigendom

Buitenruimte

  • Tuin Achtertuin

Parkeren

  • Garage Geen Garage
  • Parkeergelegenheid Betaald Parkeren, Parkeervergunningen

Dak

  • Type Plat Dak

Andere

  • Permanent verblijf Ja
  • Bijzonderheden Gestoffeerd
  • Onderhoud binnenshuis Goed
  • Onderhoud binnenshuis Goed
  • Huidig gebruik Woonruimte
  • Huidig doel Woonruimte

Kadastrale gegevens

  • Gemeente Rotterdam
  • Sectie AA
  • Kavelnummer 1994
  • Eigendomssituatie VOLLE_EIGENDOM

Omschrijving

HOEK- BENEDENAPPARTEMENT MET EEN EIGEN TUIN. Op zoek naar een woning met buitenruimte? Deze 2-kamer benedenwoning beschikt over een heerlijke eigen tuin van maar liefst ca. 83 m² én een solide basis. De woning is volledig voorzien van kunststof kozijnen en heeft een eigen cv-combiketel voor comfortabele verwarming.

De ruime woonkamer aan de voorzijde heeft veel raampartijen wat zorgt voor veel lichtinval en er is een separate bijkeuken/wasruimte aan de voorzijde gerealiseerd. Verder vind je er een nette, vernieuwde badkamer, een functionele keukenruimte en een slaapkamer met directe toegang tot de achtertuin. In de tuin is een balkon met een overkapping en een houten schuur. En in de onderbouw is een eigen berging, perfect voor extra opslag.

De woning ligt in Oud Mathenesse, een wijk die de laatste jaren aan populariteit heeft gewonnen. De wijk ontwikkelt zich snel en wordt steeds populairder onder starters en jonge gezinnen. Het gaat om een groene, verzorgde en vooroorlogse stadswijk. Het gezellige centrum van Schiedam is gemakkelijk per fiets te bereiken en langs de historische grachten vind je diverse cafés en restaurants. Metrohalte Marconiplein (lijnen A, B en C) en bushaltes liggen op loopafstand, net als verschillende winkels, supermarkten en de Bigshops bij het Dakpark. Dankzij de nabijheid van de A20 en A4 zijn ook de uitvalswegen goed bereikbaar. En met een kleine 15 minuten fietsen sta je al in hartje Rotterdam.

Persoonlijke noot van de verkopers: 'Wat dit huis voor ons zo bijzonder maakte, was de combinatie van rust, ruimte en ligging. Het is letterlijk één van de laatste straten van Rotterdam: je woont hier rustig, maar bent zó in de stad. De grote tuin was voor ons een enorme plus; een plek waar je echt buiten kunt leven, iets wat je zelden vindt bij een appartement. Daarnaast zijn alle voorzieningen dichtbij en sta je binnen korte tijd in zowel Schiedam als Rotterdam centrum.'

Neem contact op via ons kantoor voor het maken van een bezichtigingsafspraak!

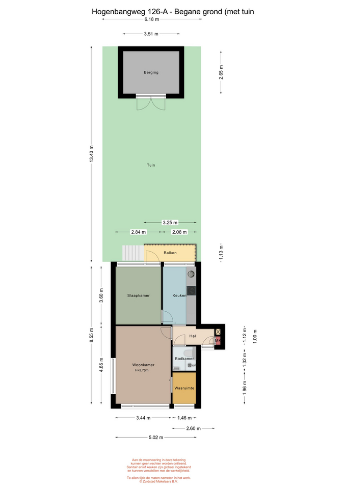
Indeling: 

* Entree middels het afgesloten portiek; toegang tot de kelderbergen en trapopgang naar het appartement. 

Eerste woonlaag: 
* Woningentree; gang voorzien van laminaatvloer, meterkast en toegang tot de verschillende vertrekken. 
* Badkamer geheel voorzien van betegeling, inloopdouche, fonteintje en wandtoilet. 
* Woonkamer aan de voorzijde, voorzien van laminaatvloer, strakke wanden en plafond en verbinding met de wasruimte.
* Wasruimte/bijkeuken aan de voorzijde, voorzien van tegelvloer en de wasmachine-aansluiting. 
* Keukenruimte aan de achterzijde voorzien van laminaatvloer en inbouwkeuken met inbouwapparatuur: elektrische kookplaat, oven, koelkast en afzuigkap. Toegang tot de slaapkamer. 
* Slaapkamer aan de achterzijde voorzien van laminaatvloer, strakke wanden en plafond en een deur naar de tuin. 

* Royale achtertuin (ca. 83 m²) gelegen op het oosten, voorzien van balkon met een overkapping, bestrating, groen en een houten schuur (ca. 9 m²).

Algemeen: 

* Eigen grond.
* Energielabel C, geldig tot 16 december 2030.
* De wijk Oud-Mathenesse valt onder de opkoopbescherming. Dit houdt in dat een belegger de woning niet kan kopen voor de verhuur, al gelden er uitzonderingen zoals de verhuur aan een kind. Kijk voor meer informatie op de website van de gemeente Rotterdam.
* De woning is geheel voorzien van kunststof raamkozijnen met dubbele beglazing. 
* Centrale verwarming en warmwatervoorziening middels een combiketel (Remeha, 2012).
* Voor een indicatie van de maatvoering verwijzen wij naar de plattegrond.
* Gezien het bouwjaar van de woning wordt er in de koopovereenkomst een ouderdomsclausule opgenomen.

Gebruiksoppervlakten en inhoud: 

* Wonen ca. 44 m²
* Gebouwgebonden buitenruimte ca. 4 m²
* Externe bergruimte ca. 14 m²
* Inhoud ca. 152 m³
 
Bijdrage V.v.E.                   : € 120,-- per maand
Bouwjaar woning               : 1940
Oplevering                       : In onderling overleg, kan snel

Wijk statistieken

Burgerlijke staat (%)

  • Getrouwd
  • Ongehuwd
  • Gescheiden
  • Weduwe(naar)

Leeftijd in gemeente (%)

  • 0 - 15 jaar
  • 15 - 25 jaar
  • 25 - 45 jaar
  • 45 - 56 jaar
  • 65+ jaar

Gezinnen met kinderen

  • % met kinderen
  • % zonder kinderen
  • % éénpersoonshuishouden

Gezinssamenstelling

  • Getrouwd
  • Ongehuwd
  • Gescheiden
  • Weduwe(naar)

Leeftijd in wijk

  • 0 - 15 jaar
  • 15 - 25 jaar
  • 25 - 45 jaar
  • 45 - 56 jaar
  • 65+ jaar

Documenten

Selecteer de documenten om ze te downloaden

terug naar overzicht
Chat openen
1
Hallo,
Kunnen wij jou ergens mee helpen?