Menu Sluiten

Omschrijving

ROYAAL EN CENTRAAL WONEN NABIJ HOTSPOTGEBIEDEN! De Dordtselaan 210-C03 is een ruime 5 kamer bovenwoning op de derde en halve vierde verdieping, gelegen aan de bekende laan tussen winkelcentrum Zuidplein en metrostation Maashaven. De woning heeft naast ca. 104 m² woonoppervlakte, centrale verwarming en is op de derde verdieping voorzien...

Lees verder

Kenmerken

  • Status Beschikbaar
  • Prijs € 250.000,- Kosten Koper
  • Woonoppervlakte 104m²
  • Objecttype Appartement
  • Bouwjaar 1933
meer kenmerken bekijken

Kaart

In de omgeving

wijk statistieken

Burgerlijke staat (%)

  • Getrouwd
  • Ongehuwd
  • Gescheiden
  • Weduwe(naar)

Leeftijd in gemeente (%)

  • 0 - 15 jaar
  • 15 - 25 jaar
  • 25 - 45 jaar
  • 45 - 56 jaar
  • 65+ jaar

Gezin met kinderen

  • % met kinderen
  • % zonder kinderen
  • % eenpersoonshuishouden

Overdracht

  • Status Beschikbaar
  • Prijs € 250.000,- Kosten Koper
  • Aanvaarding In Overleg

Bouwvorm

  • Objecttype Appartement
  • Type appartement Bovenwoning
  • Bouwjaar 1933
  • Bouwvorm Bestaande Bouw
  • Locatie Aan Drukke Weg, In Woonwijk, Beschutte Ligging

Indeling

  • Woonoppervlakte 104m2
  • Capaciteit 339m3
  • Kamers 5
  • Slaapkamers 4
  • Woonverdiepingen

Energie

  • Energie-klasse D
  • Einddatum energie 2036-04-14
  • Isolatie Gedeeltelijk Dubbel Glas
  • Warm water Cv Ketel
  • Verwarming Cv Ketel
  • Bouwjaar ketel 2018
  • Combiketel Ja
  • Brandstof Gas
  • Eigendom Eigendom

Buitenruimte

  • Tuin Geen Tuin

Parkeren

  • Garage Geen Garage
  • Parkeergelegenheid Betaald Parkeren, Parkeervergunningen

Dak

  • Type Plat Dak

Andere

  • Permanent verblijf Ja
  • Bijzonderheden Gestoffeerd
  • Onderhoud binnenshuis Goed
  • Onderhoud binnenshuis Goed
  • Huidig gebruik Woonruimte
  • Huidig doel Woonruimte

Kadastrale gegevens

  • Gemeente Charlois
  • Sectie G
  • Kavelnummer 4027
  • Index 7
  • Eigendomssituatie VOLLE_EIGENDOM

Omschrijving

ROYAAL EN CENTRAAL WONEN NABIJ HOTSPOTGEBIEDEN! De Dordtselaan 210-C03 is een ruime 5 kamer bovenwoning op de derde en halve vierde verdieping, gelegen aan de bekende laan tussen winkelcentrum Zuidplein en metrostation Maashaven. De woning heeft naast ca. 104 m² woonoppervlakte, centrale verwarming en is op de derde verdieping voorzien van een douche, toiletruimte en keukenruimte, alsook op de vierde verdieping voorzien van een keukenopstelling en een badkamer met toilet. Kortom: Een woning met ruimte en mogelijkheden! 

Wanneer je aan de Dordtselaan woont, woon je in een levendige en stadse omgeving. Centraal gelegen ten opzichte van Zuidplein en Maashaven. Beide zijn met de fiets binnen enkele minuten te bereiken. Vanaf Zuidplein zijn er vele doorreismogelijkheden en is er het winkelcentrum 'Zuidplein' met een divers aanbod aan winkels. Ga je toch liever naar het centrum van de stad? Dan is de metro vanaf station Maashaven, gelegen aan het einde van de Dordtselaan, de beste optie. Hier vind je eveneens aantrekkelijke gebieden als hotspotgebied Katendrecht, de Erasmusbrug en de skyline van de stad. 

Laat je verder overtuigen tijdens een bezichtiging! Van harte welkom!
 
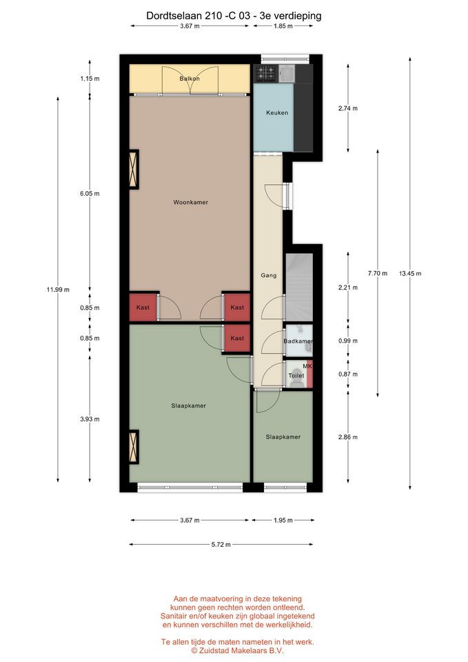
Indeling: 

* Trapopgang naar de eerste verdieping. Gezamenlijke entree met trapopgang naar de derde verdieping. 

Derde verdieping:
* Woningentree; gang voorzien van parketvloer. 
* Toiletruimte voorzien van duoblok-toiletopstelling, betegeling en de meterkast. 
* Doucheruimte voorzien van betegeling en wastafel. 
* Grote woonkamer voorzien van parketvloer, een marmeren schouw, gestukadoorde wanden en plafond, vaste kast en schuifdeuren naar de achtergelegen kamer.
* Slaap/eetkamer I aan de achterzijde, voorzien van parketvloer, marmeren schouw, 2 vaste kasten en openslaande deuren naar het balkon.
* Balkon aan de achterzijde, gelegen op het oosten. 
* Slaapkamer (zijkamer) || aan de voorzijde, voorzien van parketvloer. 
* Keukenruimte voorzien van tegelvloer, hoek-keukenopstelling, grijs werkblad met spoelbak en gaskookplaat en een deur naar het balkon. 

Vierde verdieping (voorzijde):
* Ruime voorzolder voorzien van laminaatvloer, keukenopstelling met spoelbak, afzuigkap en gaskookplaat, kast met de combiketel.
* Badkamer voorzien van douchecabine, wastafelmeubel, wasmachine aansluiting en licht betegeld. 
* Toiletruimte voorzien van duoblok-toiletopstelling en betegeling.
* Grote slaapkamer III voorzien van parketvloer en een deur naar het balkon.
* Slaapkamer IV voorzien van parketvloer, vaste kast en een deur naar het balkon. 
* Balkon over de gehele breedte van de woning aan de voorzijde, gelegen op het westen. 

Algemeen: 

* Eigen grond.
* Energielabel D, geldig tot 14 april 2036.
* De wijk Bloemhof valt onder de opkoopbescherming. Dit houdt in dat een belegger de woning niet kan kopen voor de verhuur, al gelden er uitzonderingen zoals de verhuur aan een kind. Kijk voor meer informatie op de website van de gemeente Rotterdam.
* De woning is gedeeltelijk voorzien van kunststof raamkozijnen met dubbele beglazing en gedeeltelijk van houten raamkozijnen met enkele beglazing. 
* Centrale verwarming en warmwatervoorziening met een combiketel (Remeha, 2018).
* Voor een indicatie van de maatvoering verwijzen wij naar de plattegrond.
* Gezien het bouwjaar van de woning wordt er in de koopovereenkomst een ouderdomsclausule opgenomen en een artikel dat verband houdt met het feit dat de woning een voormalige huurwoning betreft.
 
Gebruiksoppervlakten en inhoud:

* Wonen ca. 104 m²
* Gebouwgebonden buitenruimte ca. 9 m²
* Inhoud ca. 339 m³
 
Bijdrage V.v.E.                  : € 157,- per maand
Bouwjaar woning              : 1933
Oplevering                       : In onderling overleg, kan spoedig

Wijk statistieken

Burgerlijke staat (%)

  • Getrouwd
  • Ongehuwd
  • Gescheiden
  • Weduwe(naar)

Leeftijd in gemeente (%)

  • 0 - 15 jaar
  • 15 - 25 jaar
  • 25 - 45 jaar
  • 45 - 56 jaar
  • 65+ jaar

Gezinnen met kinderen

  • % met kinderen
  • % zonder kinderen
  • % éénpersoonshuishouden

Gezinssamenstelling

  • Getrouwd
  • Ongehuwd
  • Gescheiden
  • Weduwe(naar)

Leeftijd in wijk

  • 0 - 15 jaar
  • 15 - 25 jaar
  • 25 - 45 jaar
  • 45 - 56 jaar
  • 65+ jaar

Documenten

Selecteer de documenten om ze te downloaden

terug naar overzicht
Chat openen
1
Hallo,
Kunnen wij jou ergens mee helpen?