Menu Sluiten

Omschrijving

EEN BUITENKANS! BEKIJK DEZE TWEE-KAMERBENEDENWONING MET ROYALE ACHTERTUIN! Op zoek naar een betaalbare woning met een fijne buitenruimte? Dan is deze charmante benedenwoning precies wat je zoekt. Met een ruime achtertuin van maar liefst 52 m² biedt deze woning volop mogelijkheden om te ontspannen, tuinieren of gezellig buiten te zitten....

Lees verder

Kenmerken

  • Status Beschikbaar
  • Prijs € 225.000,- Kosten Koper
  • Woonoppervlakte 51m²
  • Objecttype Appartement
  • Bouwjaar 1939
meer kenmerken bekijken

Kaart

In de omgeving

wijk statistieken

Burgerlijke staat (%)

  • Getrouwd
  • Ongehuwd
  • Gescheiden
  • Weduwe(naar)

Leeftijd in gemeente (%)

  • 0 - 15 jaar
  • 15 - 25 jaar
  • 25 - 45 jaar
  • 45 - 56 jaar
  • 65+ jaar

Gezin met kinderen

  • % met kinderen
  • % zonder kinderen
  • % eenpersoonshuishouden

Overdracht

  • Status Beschikbaar
  • Prijs € 225.000,- Kosten Koper
  • Aanvaarding In Overleg

Bouwvorm

  • Objecttype Appartement
  • Type appartement Benedenwoning
  • Bouwjaar 1939
  • Bouwvorm Bestaande Bouw
  • Locatie Aan Rustige Weg, In Woonwijk, Beschutte Ligging

Indeling

  • Woonoppervlakte 51m2
  • Capaciteit 170m3
  • Kamers 2
  • Slaapkamers 1
  • Woonverdiepingen

Energie

  • Energie-klasse F
  • Einddatum energie 2026-08-16
  • Isolatie Dubbel Glas
  • Warm water Cv Ketel
  • Verwarming Cv Ketel
  • Bouwjaar ketel 2016
  • Combiketel Ja
  • Brandstof Gas
  • Eigendom Eigendom

Buitenruimte

  • Tuin Achtertuin

Parkeren

  • Garage Geen Garage
  • Parkeergelegenheid Betaald Parkeren, Parkeervergunningen

Dak

  • Type Zadeldak

Andere

  • Permanent verblijf Ja
  • Bijzonderheden Gestoffeerd
  • Onderhoud binnenshuis Goed
  • Onderhoud binnenshuis Goed
  • Huidig gebruik Woonruimte
  • Huidig doel Woonruimte

Kadastrale gegevens

  • Gemeente Charlois
  • Sectie H
  • Kavelnummer 2576
  • Index 1
  • Eigendomssituatie VOLLE_EIGENDOM

Omschrijving

EEN BUITENKANS! BEKIJK DEZE TWEE-KAMERBENEDENWONING MET ROYALE ACHTERTUIN! Op zoek naar een betaalbare woning met een fijne buitenruimte? Dan is deze charmante benedenwoning precies wat je zoekt. Met een ruime achtertuin van maar liefst 52 m² biedt deze woning volop mogelijkheden om te ontspannen, tuinieren of gezellig buiten te zitten.

De indeling is praktisch en comfortabel, zo is er aan de voorzijde de lichte en ruime woonkamer met sfeervolle schouw. Via authentieke schuifdeuren bereik je de slaapkamer aan de achterzijde, die in directe verbinding staat met de keukenruimte. Vanuit hier stap je zo de zonnige tuin in. Verder beschikt de woning over functionele sanitaire voorzieningen, centrale verwarming middels een eigen C.V.-combiketel en kunststof kozijnen met dubbele beglazing.

De woning is gelegen in de gezellige wijk Carnisse, een buurt die de afgelopen jaren sterk in ontwikkeling is. Je woont hier rustig, maar toch vlak bij het bruisende hart van Rotterdam-Zuid. Op korte afstand vind je Ahoy, het nieuwe zwembad, het Kunstenpand met theater en bibliotheek en diverse leuke horecagelegenheden. Voor je dagelijkse boodschappen kun je terecht in het vernieuwde Winkelcentrum Zuidplein, waar zich ook het metro- en busstation bevinden. Daarnaast ligt het uitgestrekte Zuiderpark om de hoek, ideaal voor sport, ontspanning en recreatie. De bereikbaarheid is uitstekend: binnen enkele minuten zit je op de snelweg en via de Maastunnel ben je zo in het centrum.

Kortom, een fijne starterswoning met een grote tuin, op een centrale en levendige locatie.

Nieuwsgierig geworden? Neem contact op voor een bezichtiging, je bent van harte welkom!

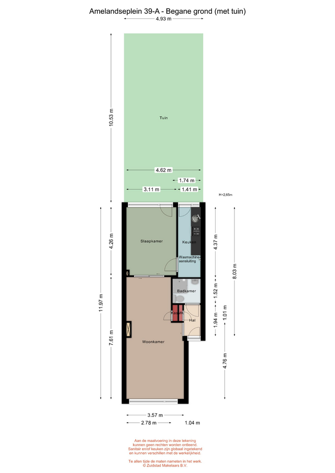
Indeling:

* Gesloten portiek met brievenbussen, intercominstallatie, toegang tot de woningen.

Begane grond:
* Woningentree; hal voorzien van laminaatvloer; meterkast en toegang tot verschillende vertrekken.
* Badkamer voorzien van douchecabine, duobloktoiletopstelling, wastafelmeubel, designradiator en betegeling.
* Woonkamer aan de voorzijde voorzien van laminaatvloer, schouw, nette wand- en plafondafwerking, vaste kast en schuifdeuren naar de slaapkamer aan de achterzijde.
* Slaapkamer aan de achterzijde voorzien van laminaatvloer, nette wand- en plafondafwerking en een deur naar keukenruimte en de achtertuin.
* Keukenruimte met betegelde/ betimmerde wanden, inbouwkeukenopstelling voorzien van spoelbak, gaskookplaat, oven, schouw afzuigkap, opbergruimte, wasmachine-aansluiting en de opstelling van de C.V.-combiketel; deur naar de tuin.

Achtertuin:
* Royale achtertuin van ca. 52 m² gelegen op het zuidwesten voorzien van bestrating.

Algemeen: 

* Eigen grond.
* Energielabel F, geldig tot 16 augustus 2026.
* De wijk Carnisse valt onder de opkoopbescherming. Dit houdt in dat een belegger de woning niet kan kopen voor de verhuur, al gelden er uitzonderingen zoals de verhuur aan een kind. Kijk voor meer informatie op de website van de gemeente Rotterdam.
* Er is een mogelijkheid tot het realiseren van een uitbouw; hiervoor kan mogelijk subsidie worden aangevraagd
* Centrale verwarming en warmwatervoorziening middels een eigen combiketel (Intergas, 2016).
* De woning is geheel voorzien van kunststof raamkozijnen met dubbele beglazing.
* Gezien het bouwjaar van de woning wordt er in de koopovereenkomst een ouderdomsclausule opgenomen en een artikel dat verband houd met het feit dat de woning een voormalige huurwoning betreft.
* Voor een indicatie van de maatvoering verwijzen wij naar de plattegrond.

Gebruiksoppervlakten en inhoud:

* Wonen ca. 51 m²
* Inhoud ca. 170 m³

Bijdrage V.v.E.           : € 65,-- per maand 
Bouwjaar woning       : 1939
Oplevering                 : In onderling overleg, kan snel

Wijk statistieken

Burgerlijke staat (%)

  • Getrouwd
  • Ongehuwd
  • Gescheiden
  • Weduwe(naar)

Leeftijd in gemeente (%)

  • 0 - 15 jaar
  • 15 - 25 jaar
  • 25 - 45 jaar
  • 45 - 56 jaar
  • 65+ jaar

Gezinnen met kinderen

  • % met kinderen
  • % zonder kinderen
  • % éénpersoonshuishouden

Gezinssamenstelling Carnisse

  • Getrouwd
  • Ongehuwd
  • Gescheiden
  • Weduwe(naar)

Leeftijd in wijk

  • 0 - 15 jaar
  • 15 - 25 jaar
  • 25 - 45 jaar
  • 45 - 56 jaar
  • 65+ jaar

Documenten

Selecteer de documenten om ze te downloaden

terug naar overzicht
Chat openen
1
Hallo,
Kunnen wij jou ergens mee helpen?