Menu Sluiten
3083 MN ROTTERDAM

Wolphaertsbocht 277B

Omschrijving

CENTRAAL WONEN OP EEN LEVENDIGE LOCATIE? De Wolphaertsbocht 277-B is een verzorgd en direct te betrekken 3-kamer appartement op de eerste verdieping, ideaal voor de starter op de woningmarkt!  De woning is voorzien van een nette laminaatvloer en strakke wanden en plafonds. Aan de voorzijde is de woonkamer gesitueerd met...

Lees verder

Kenmerken

  • Status Verkocht
  • Prijs € 219.500,- Kosten Koper
  • Woonoppervlakte 47m²
  • Objecttype Appartement
  • Bouwjaar 1940
meer kenmerken bekijken

Kaart

In de omgeving

wijk statistieken

Burgerlijke staat (%)

  • Getrouwd
  • Ongehuwd
  • Gescheiden
  • Weduwe(naar)

Leeftijd in gemeente (%)

  • 0 - 15 jaar
  • 15 - 25 jaar
  • 25 - 45 jaar
  • 45 - 56 jaar
  • 65+ jaar

Gezin met kinderen

  • % met kinderen
  • % zonder kinderen
  • % eenpersoonshuishouden

Overdracht

  • Status Verkocht
  • Prijs € 219.500,- Kosten Koper
  • Aanvaarding In Overleg

Bouwvorm

  • Objecttype Appartement
  • Type appartement Portiekwoning
  • Bouwjaar 1940
  • Bouwvorm Bestaande Bouw
  • Locatie In Centrum

Indeling

  • Woonoppervlakte 47m2
  • Capaciteit 154m3
  • Kamers 3
  • Slaapkamers 2
  • Woonverdiepingen

Energie

  • Energie-klasse C
  • Einddatum energie 2035-09-29
  • Isolatie Dubbel Glas
  • Warm water Cv Ketel
  • Verwarming Cv Ketel
  • Bouwjaar ketel 2020
  • Combiketel Ja
  • Brandstof Gas
  • Eigendom Eigendom

Buitenruimte

  • Tuin Geen Tuin

Parkeren

  • Garage Geen Garage
  • Parkeergelegenheid Betaald Parkeren, Parkeervergunningen

Dak

  • Type Zadeldak

Andere

  • Permanent verblijf Ja
  • Bijzonderheden Gestoffeerd
  • Onderhoud binnenshuis Goed
  • Onderhoud binnenshuis Goed
  • Huidig gebruik Woonruimte
  • Huidig doel Woonruimte

Kadastrale gegevens

  • Gemeente Charlois
  • Sectie E
  • Kavelnummer 4405
  • Index 12
  • Eigendomssituatie VOLLE_EIGENDOM

Omschrijving

CENTRAAL WONEN OP EEN LEVENDIGE LOCATIE? De Wolphaertsbocht 277-B is een verzorgd en direct te betrekken 3-kamer appartement op de eerste verdieping, ideaal voor de starter op de woningmarkt! 

De woning is voorzien van een nette laminaatvloer en strakke wanden en plafonds. Aan de voorzijde is de woonkamer gesitueerd met veel lichtinval en de open keukenruimte mét kookeiland. Er is een ruime badkamer met douchecabine en wastafelmeubel en de separate toiletruimte is voorzien van een fonteintje. Verder krijg je de beschikking over 2 slaapkamers aan de achterzijde, welke beiden toegang hebben tot het balkon wat is gelegen op het zonnige zuiden. Alle kozijnen zijn voorzien van kunststof kozijnen met dubbele beglazing en er is centrale verwarming middels een combiketel (2020).

Het appartement is gelegen op een gezellige locatie nabij veel openbare voorzieningen; een tramhalte schuin tegenover de woning, met de fiets binnen 15 minuten in hartje centrum (via de Maastunnel), Katendrecht of de Kop van Zuid, uitstekende winkelfaciliteiten zoals diverse supermarkten, bakkers, slagers, eetgelegenheden en avondwinkel op loopafstand en met de auto ben je binnen korte tijd op de omliggende snelwegen. 

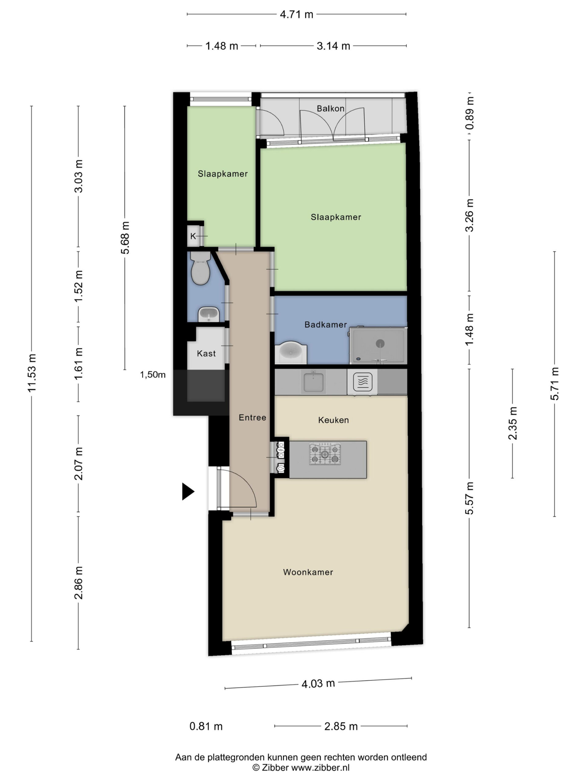
Indeling: 

* Open portiek met trapopgang naar de eerste verdieping.
* Achter de appartementencomplexen bevindt zich een eigen schuur.

Eerste verdieping:
* Woningentree; gang voorzien van laminaatvloer, vaste kast met de wasmachine-aansluiting, meterkast; toegang tot de verschillende vertrekken.
* Woonkamer aan de voorzijde voorzien van laminaatvloer, gestucte wanden en plafond met sierlijst en spotjes, open verbinding met de keukenruimte. 
* Keukenruimte voorzien laminaatvloer en moderne inbouwkeuken met kookeiland en inbouwapparatuur: 5-pits gaskookplaat, afzuigkap, magnetron, oven, vaatwasmachine, koelkast en vrieskast. 
* Badkamer voorzien van douchecabine, wastafelmeubel, designradiator en lichte betegeling. 
* Toiletruimte voorzien van duoblok-toiletopstelling, fonteintje en betegeling. 
* Slaapkamer I aan de achterzijde voorzien van laminaatvloer en openslaande deuren naar het balkon aan de achterzijde. 
* Slaapkamer II aan de achterzijde voorzien van laminaatvloer, vaste kast en een deur naar het balkon aan de achterzijde. 
* Balkon aan de achterzijde gelegen op het zuiden. 

* Eigen berging op de binnenplaats achter de woning. 

Algemeen: 

* Eigen grond.
* Energielabel C, geldig tot 29 september 2035. 
* De wijk Carnisse valt onder de opkoopbescherming. Dit houdt in dat een belegger de woning niet kan kopen voor de verhuur, al gelden er uitzonderingen zoals de verhuur aan een kind. Kijk voor meer informatie op de website van de gemeente Rotterdam.
* De woning is geheel voorzien van kunststof raamkozijnen met dubbele beglazing.
* Centrale verwarming en warmwatervoorziening middels een combiketel (Intergas, 2020). 
* Voor een indicatie van de maatvoering verwijzen wij naar de plattegrond.
* Gezien het bouwjaar van de woning wordt er in de koopovereenkomst een ouderdomsclausule opgenomen en een artikel dat verband houdt met het feit dat de woning een voormalige huurwoning betreft.

Gebruiksoppervlakten en inhoud:

* Wonen ca. 47 m²
* Gebouwgebonden buitenruimte ca. 3 m²
* Inhoud ca. 154 m³
 
Bijdrage V.v.E.                  : € 70,63 per maand
Bouwjaar woning              : 1940
Oplevering                      : Kan spoedig

Wijk statistieken

Burgerlijke staat (%)

  • Getrouwd
  • Ongehuwd
  • Gescheiden
  • Weduwe(naar)

Leeftijd in gemeente (%)

  • 0 - 15 jaar
  • 15 - 25 jaar
  • 25 - 45 jaar
  • 45 - 56 jaar
  • 65+ jaar

Gezinnen met kinderen

  • % met kinderen
  • % zonder kinderen
  • % éénpersoonshuishouden

Gezinssamenstelling Carnisse

  • Getrouwd
  • Ongehuwd
  • Gescheiden
  • Weduwe(naar)

Leeftijd in wijk

  • 0 - 15 jaar
  • 15 - 25 jaar
  • 25 - 45 jaar
  • 45 - 56 jaar
  • 65+ jaar

Documenten

Selecteer de documenten om ze te downloaden

terug naar overzicht
Chat openen
1
Hallo,
Kunnen wij jou ergens mee helpen?